FIND A PROPERTY

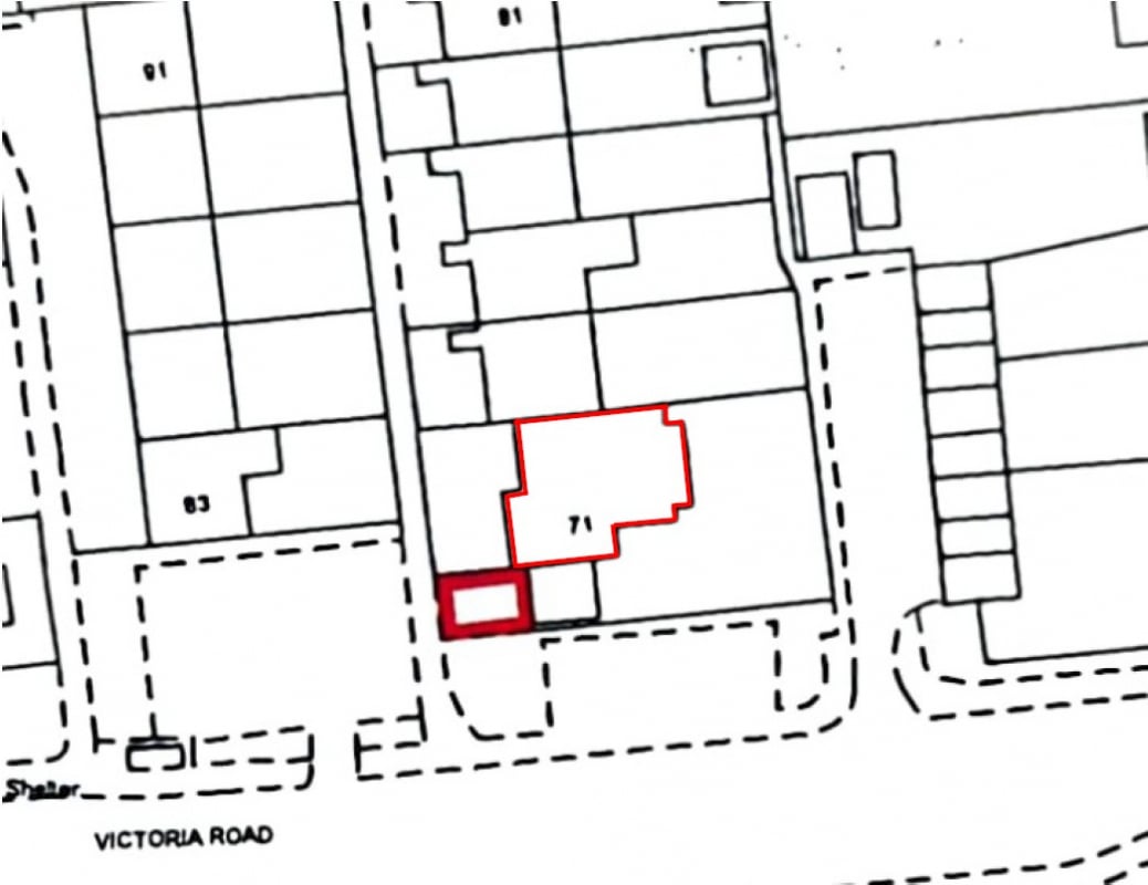
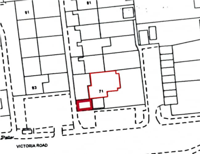
Victoria Road, Basildon, SS15

Property Reference: S6506

Listing Status

For Sale

Bedrooms

4

bathrooms

1

Property type

End of Terrace

Floor Plan

Ask a question

Virtual Tour

Ask a question

Key Features

  • Adjoining Land Included in Sale, Land Development, 4 Bedrooms, Bathroom, Downstairs WC

Full Description

We are delighted to present this affordable end-terrace four-bedroom home, ideally situated in Laindon, Basildon. Uniquely, the sale also includes an adjoining development plot, offering excellent potential for future expansion or investment. This is a fantastic project opportunity, perfect for families seeking to create a personalised living space, or for investors aiming to maximise returns. The property requires refurbishment, presenting a blank canvas to add value, while benefiting from a recently installed bathroom. Further advantages include generously proportioned rooms throughout, double glazing, and central heating, providing a solid foundation for improvement. The property also boasts a spacious and private rear garden—ideal for relaxing or entertaining during the warmer months. Early viewing is highly recommended to fully appreciate the potential on offer. Contact us today to arrange your appointment.


Parking

  • On-street

Outside Space

  • Rear Garden
  • Front Garden

Heating

  • Gas Central Heating

Victoria Road, Basildon, SS15

£330,000

How much can I borrow?

Find out more