FIND A PROPERTY

Halebank Avenue, Liverpool, L36

Property Reference: S6484

Listing Status

For Sale

Bedrooms

3

bathrooms

2

Property type

Semi-detached House

EPC Rating

Download EPC

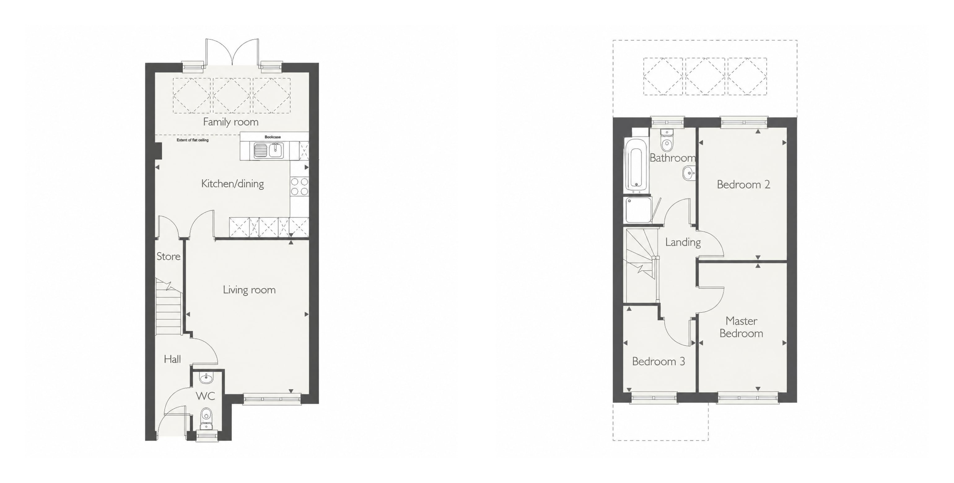
Floor Plan

Download FP

Virtual Tour

Ask a question

Key Features

  • Three Bedrooms
  • Newer Development
  • Turnkey Condition
  • Ideal for Families
  • Close to Amenities
  • Semi Detached Home
  • Modern Finish
  • Well Maintained Throughout
  • Convenient Location
  • Good Transport Links

Full Description

Set on Halebank Avenue in the L36 area, this three-bedroom semi-detached home offers a great opportunity to purchase a modern property that is ready to move straight into. Forming part of a newer development, the property benefits from a more up-to-date style of living with a layout designed to suit today’s buyers. Internally, the home is presented in excellent condition, with a bright and airy feel throughout. The ground floor provides a well-balanced living space, ideal for both day-to-day living and hosting, while the overall finish means there is little to do other than move in and enjoy. The property has clearly been well looked after, making it an attractive option for those seeking a hassle-free purchase. Upstairs, there are three good-sized bedrooms offering flexibility for families, working professionals, or those needing additional space such as a home office. The rooms are well laid out and make good use of the available space. The location is another key feature, with easy access to local shops, schools, and strong transport links, making commuting simple. Combining modern living, a convenient setting, and a ready-to-go finish, this is a home that will appeal to a wide range of buyers.


Parking

  • Driveway

Outside Space

  • Rear Garden
  • Front Garden
  • Patio

Heating

  • Gas Central Heating

Halebank Avenue, Liverpool, L36

£265,000

How much can I borrow?

Find out more