FIND A PROPERTY

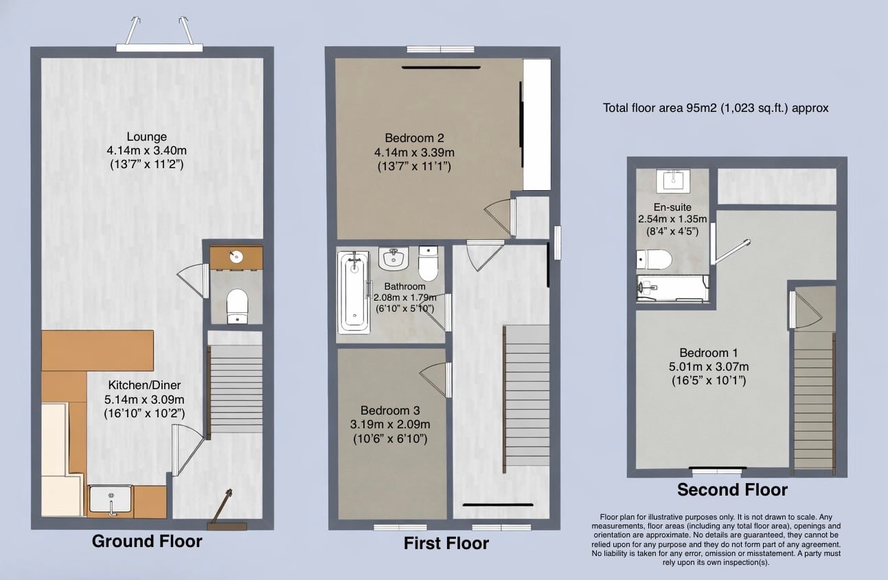
Bancroft Drive, Doncaster, DN9

Property Reference: S6417

Listing Status

For Sale

Bedrooms

3

bathrooms

3

Property type

Semi-detached House

EPC Rating

Download EPC

Floor Plan

Download FP

Virtual Tour

Ask a question

Key Features

  • Stylish three-storey family home
  • Spacious open-plan kitchen, dining and living area
  • Contemporary kitchen with island and integrated appliances
  • Recently refurbished, bright and modern interiors throughout - move in ready
  • Downstairs WC
  • Double driveway to front of house
  • French doors opening onto the low maintenance, enclosed rear garden
  • Master bedroom with en-suite
  • Attractive modern development
  • Ideal for families or professionals

Full Description

A beautifully presented three-bedroom, three-storey family home, offering stylish and versatile living space in a sought-after modern development. The ground floor has been thoughtfully designed for modern living, featuring a spacious open-plan kitchen, dining and living area. The contemporary kitchen is fitted with sleek units, integrated appliances and a central island, creating an ideal space for both everyday living and entertaining. French doors open directly onto the rear garden, allowing natural light to flood the space and providing a seamless connection between indoors and outdoors. A convenient downstairs WC completes the ground floor. To the upper floors, the property offers three well-proportioned bedrooms arranged over two levels, providing flexibility for families, guests or home working. The principal bedroom benefits from fitted wardrobes and a modern en-suite shower room, while the remaining bedrooms are all well-presented and versatile. A contemporary family bathroom and additional shower room serve the rest of the accommodation. Externally, the property enjoys a low-maintenance, enclosed rear garden—perfect for relaxing or entertaining—as well as a double driveway providing off-street parking. Beautifully maintained throughout, this home is offered in move-in ready condition and would be ideal for families or professionals seeking stylish, flexible living space. Please note there is an annual service charge of approximately £180.


Parking

  • Driveway
  • Off-street Parking
  • Private Parking

Outside Space

  • Rear Garden
  • Enclosed Garden
  • Patio

Heating

  • Gas Central Heating
  • Double Glazing

Bancroft Drive, Doncaster, DN9

£245,000

How much can I borrow?

Find out more