FIND A PROPERTY

Cranmore Avenue, Cranmore, Yarmouth, PO41

Property Reference: S6350

Listing Status

For Sale

Bedrooms

3

bathrooms

2

Property type

Detached House

EPC Rating

Download EPC

Floor Plan

Download FP

Virtual Tour

Virtual Tour

Key Features

  • Idyllic 3-bedroom detached home situated within a private lane. Large driveway/ frontage and enjoying great privacy on approx 5 acres of land.
  • Set in a peaceful rural location approximately 2 miles from the Historic harbour town of Yarmouth (Isle of Wight).
  • Turnkey glamping business opportunity included in the sale, featuring 3 high-quality self contained timber cabins.
  • Additional self-contained static caravan providing versatile guest accommodation or further rental potential.
  • Extensive outbuildings including a large workshop, stable block, pole barn, brick shed, greenhouse and storage shed.
  • Rare opportunity to purchase a private rural home with a ready made income stream, multiple buildings on generous land.

Full Description

***Westfield Farm - Lovely Home & Lifestyle Glamping Business - Approx. 5 Acres*** Enjoying total privacy on approximately 5 acres of rural grounds on the beautiful Isle of Wight, this charming 3 bedroom, 2 bathroom detached home has been thoughtfully renovated and is beautifully presented throughout. Located just 2 miles from the historic harbour town of Yarmouth with its ferry connections and easy links to Lymington and onwards to London, the property comes with an established Glamping business. The business features 3 hand crafted, self contained timber cabins, a pole barn for parking and stable block for storage with a section of the stable currently converted into a gym for the owners use. The cabins are currently used all year round and are set in their own private location within the 5 acres. A large static caravan is also included along with extensive out-buildings, including a large workshop, brick shed and a large greenhouse. The property benefits from a very generous front garden and parking for multiple vehicles - the perfect private rural retreat with excellent income potential.


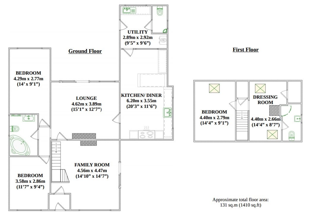
Porch 1.00m x 1.40m

The entrance porch features a double glazed door and glazed internal door opening into the family room. It includes a coat hanging rail and the consumer unit which is neatly housed within a cabinet.

Family Room 4.56m x 4.47m

A spacious and bright reception room with natural light pouring in from a large front facing window and patio doors (both double glazed). The room has a feature fireplace with built in book cases, double radiator, stairs to the first floor with a cupboard underneath & a door opening into the lounge.

Lounge 4.62m x 3.89m

A cosy and inviting room with pleasant views overlooking the rear garden. Double glazed window and patio doors, double radiator & Broseley Multifuel stove. Archway leading to the inner hallway, two bedrooms & bathroom. Glazed door to the kitchen.

Kitchen/ diner 3.55m x 6.20m

A spacious kitchen featuring a Belfast sink with mixer tap, a Bloomberg dishwasher, a Belling range double oven with stainless steel extractor & double radiator. There is a built in kitchen table, space for a fridge freezer, a double gazed side window & stable door leads through to a utility room.

Utility room 2.89m x 2.92m

A generously sized utility room featuring built in cupboards, a stainless steel single drainer sink with mixer tap, space for washing machine and an oil-fired Warmflow boiler. There is a radiator, coat rail, double glazed window to rear aspect and a double glazed door to the garden.

Cloakroom 1.10m x 1.90m

A separate cloakroom with door from the utility room, containing a WC, corner wash basin, towel radiator & extractor. Double glazed window to side aspect.

Bedroom 2.76m x 3.51m

A bright east-facing bedroom enjoying lovely garden views through a double glazed window, with a single radiator positioned beneath.

Bathroom 1.94m x 2.77m

A good sized bathroom with a double glazed window, corner bath with mixer tap & shower attachment, an electric shower over the bath & folding glass screen. It includes a WC, hand basin with vanity unit/ mirror, a towel radiator, shaver point & an extractor fan. Fully tiled with laminate flooring.

Bedroom 2.84m x 3.81m

A bright west-facing bedroom enjoying pleasant views over the front garden through a double glazed window, with a single radiator positioned beneath.

Landing 1.00m x 1.00m

Landing with storage cupboard into the eaves, Velux window above the stairs with blackout blind. Door leading to bedroom and an opening leading to the dressing room & shower room.

Bedroom 2.83m x 4.20m

A bright bedroom with a Velux window offering lovely views over the surrounding land, fitted with a blackout blind. The room benefits from a radiator & a useful storage cupboard built into the eaves.

Dressing room 2.66m x 4.40m

A useful dressing room/ area featuring two Velux windows with blackout blinds, offering plenty of natural light. The space includes a radiator, practical storage cupboards built into the eaves & a door leading to the shower room.

Shower room 1.60m x 2.73m

A modern shower room featuring a WC, hand basin with vanity storage & a corner shower cubicle with mixer shower. The room includes a towel radiator, a double glazed side-aspect window, inset lighting, an extractor fan, shaver point and a handy hidden storage area with shelving. Laminate flooring.

Static caravan - Chardonnay 35.00ft x 12.00ft

A very large 6 berth static caravan situated to the side of the main property's land. It features a fitted kitchen with gas oven and fridge, comfortable seating areas, 2 bedrooms, a gas fire, shower room, separate WC & LPG heating & hot water. Ideal for family use or generating rental income.

Shed 1.82m x 2.43m

Wooden storage shed, situated behind the gravelled seating area within the garden.

Large brick workshop 4.09m x 4.33m

A substantial brick-built workshop, currently used for tool storage and carrying out repairs. The space benefits from electric lighting, power points and a dedicated consumer unit.

Large workshop 5.64m x 11.36m

A very large wooden, versatile outbuilding offering multiple uses. Currently utilised for storage and as a workshop, the space benefits from power and lighting.

Greenhouse 3.04m x 4.87m

A large greenhouse located in the property's back garden, benefitting from power and lighting. It features double sliding doors to the front and practical aluminium staging.

Gym (part of stable block) 3.40m x 3.54m

A recently renovated and converted gym room, fully carpeted and benefiting from a window with blind, rear access door, power, electric radiator and lighting.

Stable block 3.40m x 12.50m

A large stable block. It houses the gym, two stables (one used for ride on mower storage and the other for bicycle storage for the glamping business), plus an open section for bin storage and a locked area housing solar panel & WIFI equipment. Solar panels on the roof with feed in tariff.

Pole barn 4.42m x 9.14m

A large pole barn providing 3 under-cover parking spaces for the glamping business. The barn is conveniently situated within a gravelled area.

Glamping Cabins - Beautifully hand crafted. 4.80m x 4.80m

Three self contained timber cabins. One open plan, while the other two have a separate bedroom. All include a fitted kitchen with sink, microwave/ grill, induction hob & fridge, electric heating & LPG hot water. Each has a shower room with corner shower, vanity basin, WC, towel rail & extractor.

Parking

  • Driveway

Outside Space

  • Rear Garden
  • Enclosed Garden
  • Front Garden
  • Patio

Heating

  • Oil

Cranmore Avenue, Cranmore, Yarmouth, PO41

£1,100,000

guide-price

How much can I borrow?

Find out more