FIND A PROPERTY

Hogarth Gardens, Hounslow, TW5

Property Reference: S6337

Listing Status

For Sale

Bedrooms

8

bathrooms

9

Property type

Semi-detached House

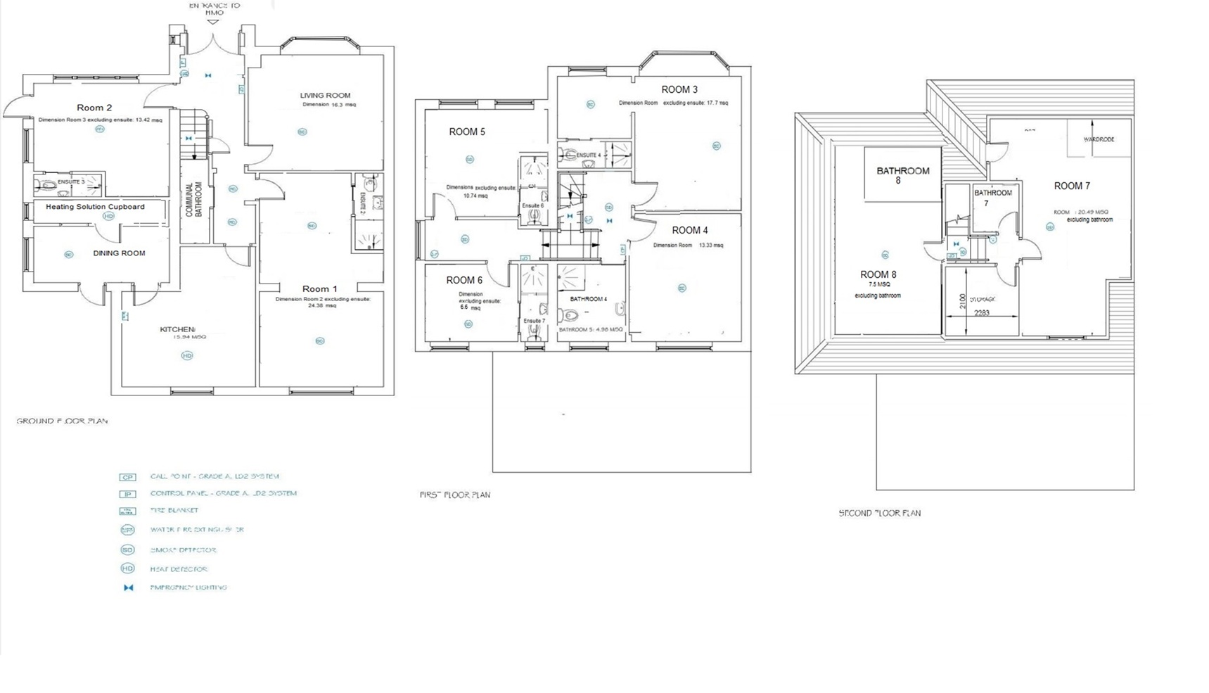
Floor Plan

Download FP

Virtual Tour

Ask a question

Key Features

  • Eight double bedroom licensed HMO
  • Sui generis planning consent available for 8 occupiers.
  • Nine bathrooms at the property with each bedroom having its own bathroom.
  • One living room and one dining room
  • Current Rental income 6500 pounds per month.
  • Property occupied by white collared tenants
  • Property is a semi detached house in a corner plot.
  • Eight cycle compound at the property
  • Property located in the prestigious street of Hogarth gardens close to Osterley tube.
  • Robust heating solution with a 41kw boiler, cold water tank and 2 vented hot water cylinders.

Full Description

A large freehold semi detached investment property currently operating as an eight bed licensed HMO. The property benefits from Sui generis planning consent to operate as a 8 bed HMO. The property occupies a corner plot. There are 8 double bedrooms, nine bathrooms, one living room and one dining room. An opportunity for a buy to let investor to acquire a profitable asset in a popular and strongly lettable part of West London. The kitchen is fully equipped with double appliances meeting licensing conditions. There are CCTV cameras at each exit and entry point. Not suitable for purchase as a residential property with a mortgage. Viewings available for the serious investor.


Parking

  • Driveway

Outside Space

  • Rear Garden

Heating

  • Gas

Hogarth Gardens, Hounslow, TW5

£1,200,000

fixed-price

How much can I borrow?

Find out more