FIND A PROPERTY

Mayflower Close, Hartwell, HP17

Property Reference: S6324

Listing Status

For Sale

Bedrooms

4

bathrooms

2

Property type

Detached House

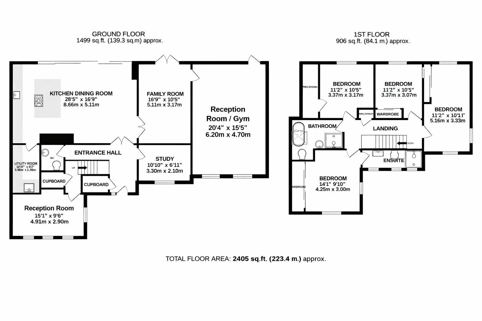
Floor Plan

Download FP

Virtual Tour

Ask a question

Key Features

  • Exceptional open-plan kitchen/dining/living space
  • High-spec kitchen with Siemens integrated appliances
  • Recently converted garage creating further reception room / gym
  • Versatile layout with multiple reception areas
  • Dedicated study / home office
  • Principal bedroom with en-suite
  • Modern family bathroom
  • Landscaped garden with seasonal planting
  • Large driveway with ample off-street parking
  • Easy access to London via Aylesbury & Haddenham & Thame Parkway

Full Description

An exceptional and beautifully extended and upgraded family home, offering over 2,400 sq.ft. of stylish and highly versatile accommodation, centred around a stunning open-plan kitchen/living space and complemented by a substantial additional reception room/gym conversion. Set within a quiet cul-de-sac in the desirable Buckinghamshire village of Hartwell, offering an ideal balance of village living and excellent connectivity to London and Oxford. The heart of the home is the impressive open-plan kitchen, dining and living space, thoughtfully designed for both everyday living and entertaining. Featuring a high-specification kitchen with Siemens integrated appliances and contemporary finishes, this space is flooded with natural light via large sliding doors and rooflights, creating a seamless connection to the garden. The ground floor offers excellent flexibility, including a separate reception room, a dedicated study, and a substantial additional reception room created from a recent garage conversion. Currently arranged as a gym, this space provides exceptional versatility and could easily serve as a playroom or additional living area. Upstairs, the property offers four generous double bedrooms, all with built-in wardrobes, including a principal bedroom with en-suite, alongside a modern family bathroom. The layout is ideal for growing families, with excellent built-in storage throughout. Externally, the property benefits from a large driveway providing ample off-street parking. The rear garden has been thoughtfully landscaped, featuring a mix of evergreen planting and seasonal blooms that provide colour and interest throughout the year, creating a highly attractive outdoor space. Freehold Council Tax Band G EPC Rating: E (updated rating tbc following appointment) Hartwell is a highly desirable Buckinghamshire village, offering a peaceful setting while remaining conveniently located for Aylesbury and surrounding areas. The property is well placed for reputable local schooling and benefits from excellent transport links, with easy access to London via Aylesbury and Haddenham & Thame Parkway, as well as connections towards Oxford. This combination of village living and connectivity makes it particularly appealing to commuters and those seeking a lifestyle move from London.


Parking

  • Driveway

Outside Space

  • Rear Garden
  • Enclosed Garden
  • Patio
  • Front Garden

Heating

  • Gas Central Heating
  • Under Floor

Mayflower Close, Hartwell, HP17

£850,000

guide-price

How much can I borrow?

Find out more