FIND A PROPERTY

The Chilterns, Kensworth, Dunstable, LU6

Property Reference: S6307

Listing Status

For Sale

Bedrooms

3

bathrooms

1

Property type

Terraced House

EPC Rating

Download EPC

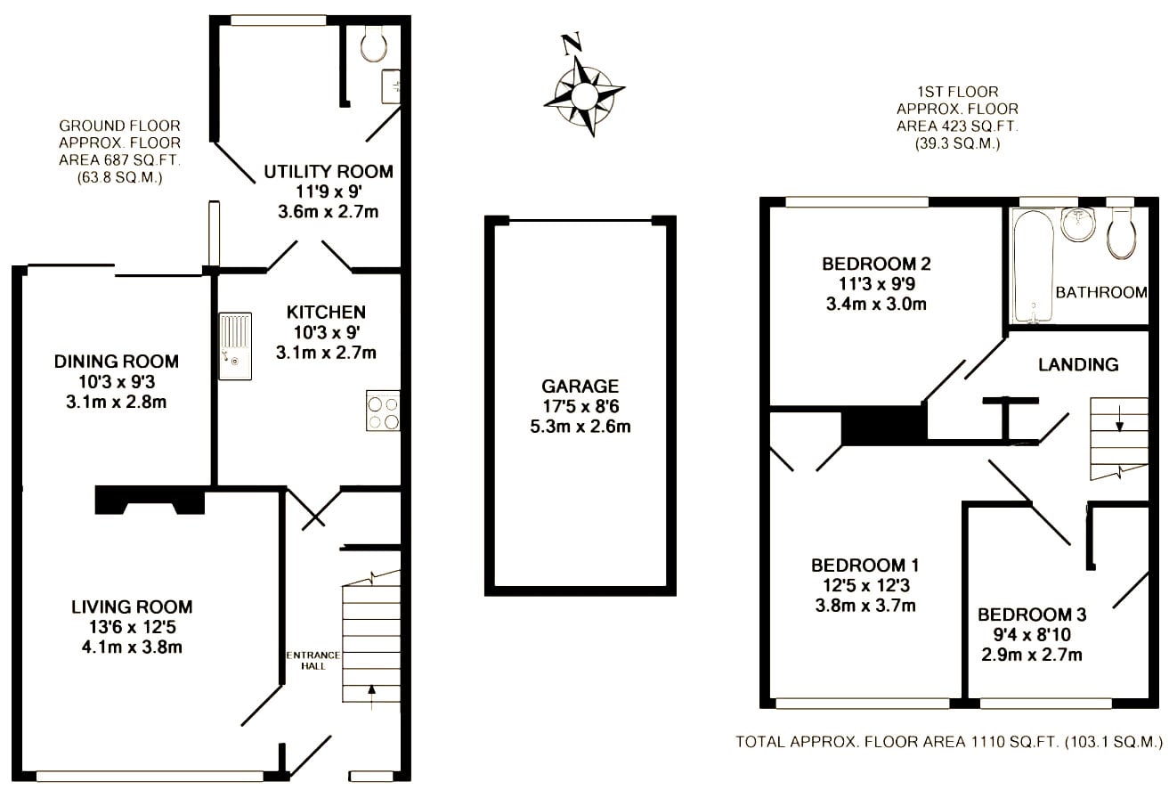
Floor Plan

Download FP

Virtual Tour

Ask a question

Key Features

  • Vacant possession: move straight in
  • Overlooks quiet green
  • Three bedrooms
  • Downstairs WC & upstairs bathroom with large shower
  • Private rear garden leading to garage
  • Within walking distance of Kensworth CE Academy and public playground
  • Cul-de-sac Location

Full Description

On entering you are greeted by a welcoming hallway with stairs rising to the first floor. To the front is a generous living room with exposed brick fireplace and gas fire, a large window to the front overlooks the green and provides extra light to the room. This leads through to a bright dining room with sliding patio doors to the garden. The modern kitchen is attractively fitted with white gloss wall and base mounted units providing ample storage, there is also a built in dishwasher, ceramic hob with stainless steel extractor and wall mounted oven. To the rear of the kitchen there is a useful utility area with space for washing machine and tumble dryer. A cloakroom with WC and hand basin completes the downstairs accommodation. Upstairs there are three good sized bedrooms served by a family bathroom with three piece suite and shower with glass screen over the bath. Outside the rear garden is mainly paved with a shingle area and small lawn and leads to the garage. Nestled on the Beds-Herts border, the sought-after village of Kensworth offers the perfect blend of countryside living and convenience. Just a short drive from Junction 9 of the M1, the village enjoys a friendly community atmosphere and is ideally placed for commuting into London, with Luton Airport and mainline train stations also close by.


Parking

  • Garage

Outside Space

  • Front Garden
  • Rear Garden

Heating

  • Gas Central Heating
  • Double Glazing

The Chilterns, Kensworth, Dunstable, LU6

£325,000

offers-over

How much can I borrow?

Find out more