FIND A PROPERTY

Ivor Court, Chalgrove Gardens, London, N3

Property Reference: S6297

Listing Status

For Sale

Bedrooms

2

bathrooms

2

Property type

Ground Floor Flat

EPC Rating

Download EPC

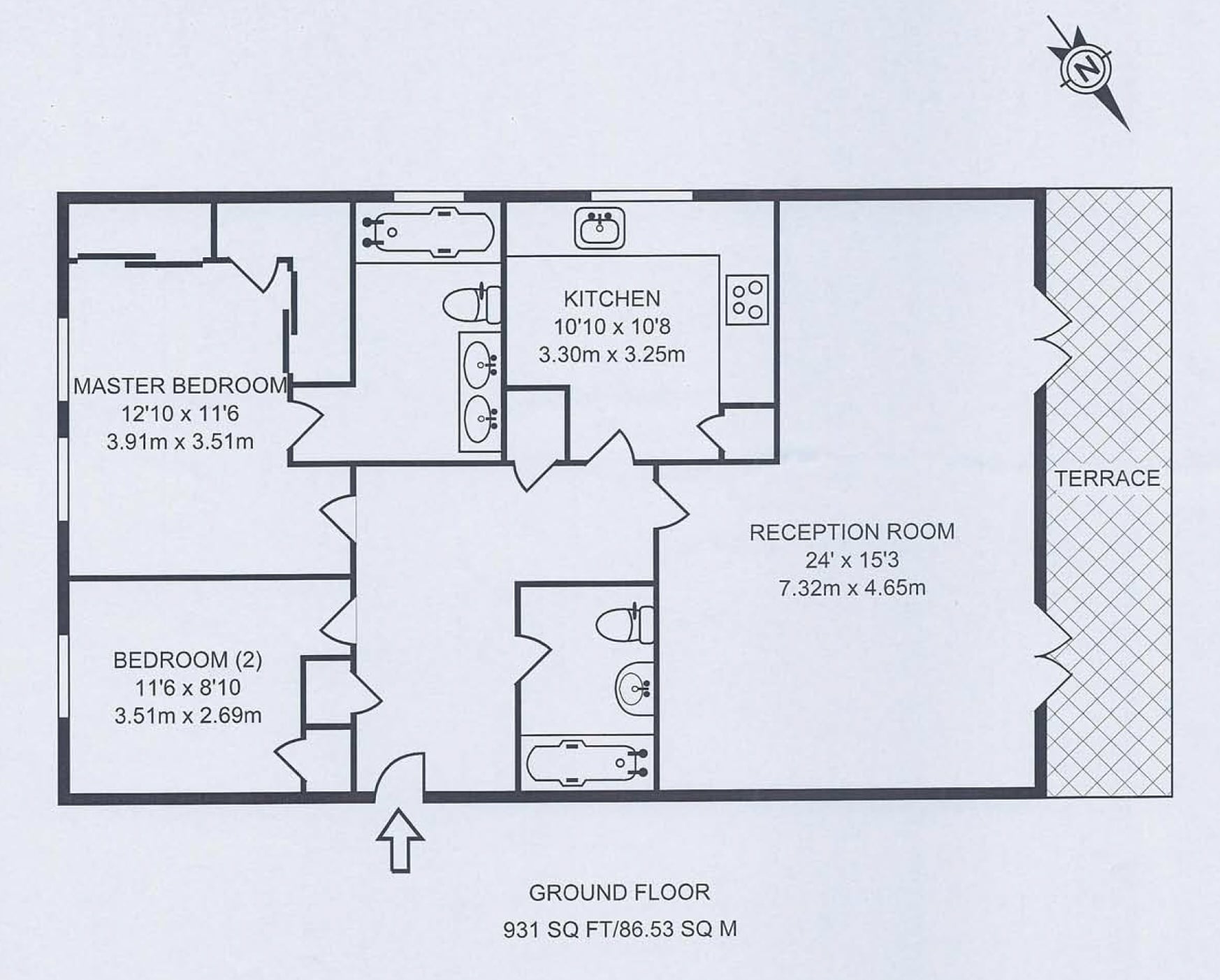
Floor Plan

Download FP

Virtual Tour

Ask a question

Key Features

  • Well-Maintained Purpose-Built Development — Situated within a well-managed, well-kept residential development
  • Bright & Spacious Reception Room — Generously sized living and dining areas with excellent natural light
  • Principal En-Suite Bedroom — Well-appointed master bedroom with ample fitted wardrobe space and pleasant outlook
  • Second Well-Proportioned Bedroom — Versatile room ideal as a guest bedroom, children's room or home office
  • Modern Family Bathroom & Guest WC — Contemporary bathroom suite complemented by a convenient additional WC
  • Well-Fitted Kitchen — Stylish kitchen with extensive cabinet storage and ample workspace
  • Allocated Underground Parking — Secure underground parking space with dedicated storage room
  • Peaceful & Friendly Community — Quiet, well-regarded neighbourhood with unrestricted road parking available nearby
  • Prime Finchley Location — Within easy reach of local shops, cafes, restaurants and everyday amenities
  • Convenient access to Finchley Central & Golders Green Underground Station and key road routes, the A406, A1 and M1

Full Description

This **impressive and well-presented ground-floor flat** offers generous and versatile living accommodation within a sought-after, modern purpose-built development, quietly positioned on a peaceful cul-de-sac in the heart of Finchley/Church End (N3). Forming part of a small, attractively maintained residential block originally constructed in the 1990s, the property benefits from mains-gas central heating and commendable energy efficiency, holding a solid **EPC Rating of C**. Arranged over a single level, the flat provides beautifully proportioned rooms throughout, lending itself equally well to **families, professional couples, downsizers and buy-to-let investors** seeking a reliable and rewarding asset in one of North London's most desirable postcodes. Ideally situated, **Ivor Court** enjoys immediate proximity to an excellent array of local shops, green open spaces, well-regarded schools and everyday amenities, while outstanding transport connections via **Finchley Central and Golders Green Underground Stations**, together with swift access to the A406, A1 and M1, place both the West End and the City comfortably within reach. With a strong track record of capital growth, enviable low turnover of residents within the building, and enduring demand from both owner-occupiers and tenants alike, this property represents a **truly compelling opportunity** in one of North London's most consistently popular and high-performing residential locations.


Parking

  • Allocated Parking

Outside Space

  • Balcony
  • Front Garden

Heating

  • Air Conditioning
  • Double Glazing
  • Gas
  • Under Floor
  • Gas Central Heating

Ivor Court, Chalgrove Gardens, London, N3

£795,000

How much can I borrow?

Find out more