FIND A PROPERTY

Glenbervie Road, Grangemouth, FK3

Property Reference: S6176

Listing Status

SSTC

Bedrooms

2

bathrooms

1

Property type

Flat/Apartment

EPC Rating

Download EPC

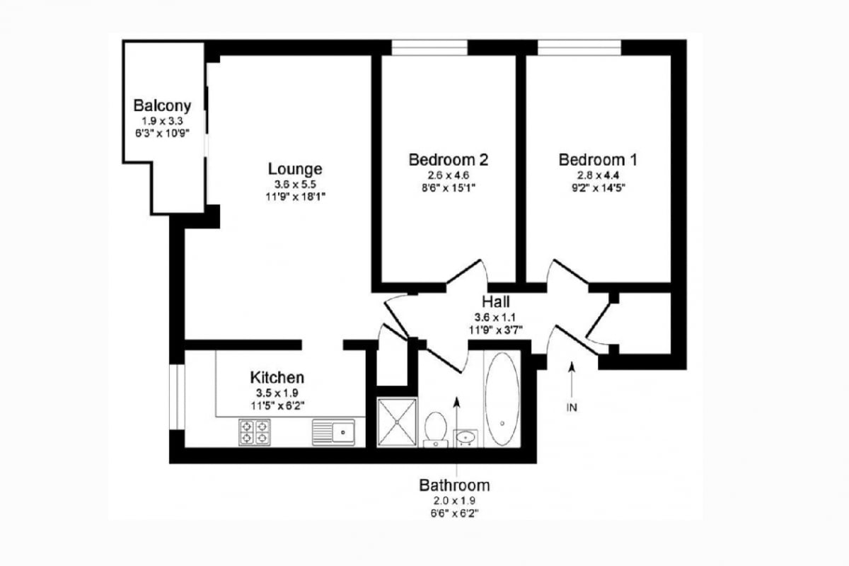
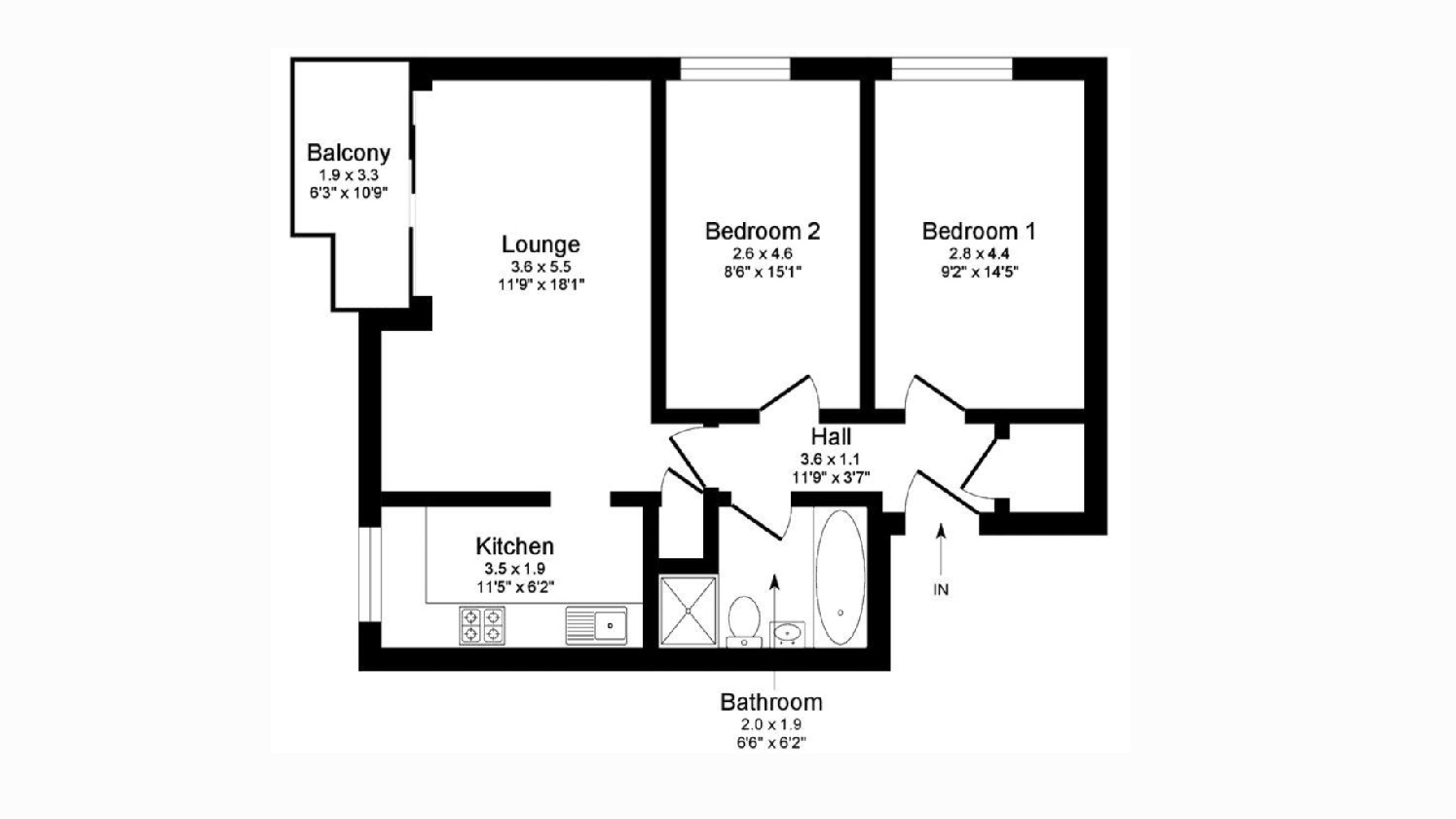
Floor Plan

Download FP

Virtual Tour

Ask a question

Key Features

  • Ideal for a first time buyer or as a buy to let opportunity.
  • 2 bedroom second floor flat.
  • South facing balcony.
  • Ample storage throughout.
  • Short walk to Inchya park.
  • Chain free.
  • EPC rating C.

Full Description

A wonderful, bright and airy modern two bedroom second floor flat. This lovely home is presented in true walk-in and comprises of internally a welcoming reception hallway, bright south facing lounge/dining area with access to the private balcony, two double sized bedrooms, a luxury three-piece family bathroom with shower and an appealing modern fitted kitchen complete with a range of base and wall mounted units. There is good storage throughout the property which is further enhanced by having gas central heating and double glazing. The area proves popular with commuters seeking access via surrounding road and motorway networks to centres of business throughout the central belt and two main line rail links provide express services to both Glasgow and Edinburgh. Council tax band - B EPC rating - C Any messages are going directly to the seller. If you would like to request a call or have any questions please message directly. Thanks.


Parking

  • Communal Parking
  • On-street

Outside Space

  • Communal Garden
  • Balcony

Heating

  • Double Glazing
  • Gas
  • Gas Central Heating

Glenbervie Road, Grangemouth, FK3

£47,000

offers-over

How much can I borrow?