FIND A PROPERTY

Maxton Road, Dover, CT17

Property Reference: S6059

Listing Status

For Sale

Bedrooms

3

bathrooms

1

Property type

Semi-detached House

EPC Rating

Download EPC

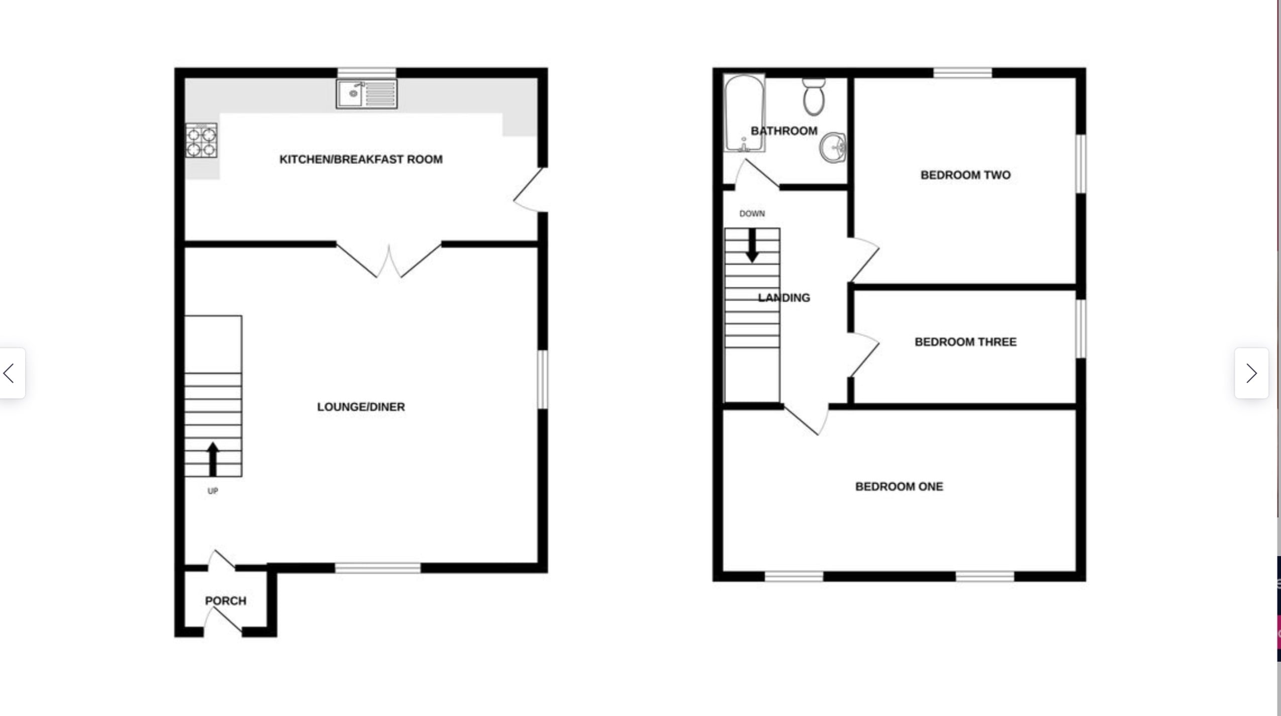
Floor Plan

Download FP

Virtual Tour

Ask a question

Key Features

Full Description

**Charming Semi-Detached Home in Desirable Dover Location** £300000 - £310000 Welcome to 17 Maxton Road, a beautifully presented semi-detached house in a desirable area. This delightful property offers a perfect blend of comfort, style, and convenience, making it an ideal home for families. **Ground Floor** As you step inside, you'll be greeted by a porch for hanging coats and storing shoes. The adjacent living room is a haven of relaxation, with large windows allowing an abundance of natural light to flood in. The room is generously proportioned for a comfortable seating area, and chandelier style lighting.. The kitchen has been recently updated, with modern units with ample storage and worktop space. The room is well-lit with views out into the garden.. **First Floor** The first floor is home to three bedrooms, each with plenty of natural light. The master bedroom is very spacious with two large windows looking out onto the driveway.


Parking

  • Driveway

Outside Space

  • Rear Garden

Heating

  • Gas Central Heating

Maxton Road, Dover, CT17

£300,000

offers-over

How much can I borrow?

Find out more