FIND A PROPERTY

River View, Haworth, Keighley, BD22

Property Reference: S5926

Listing Status

For Sale

Bedrooms

4

bathrooms

2

Property type

Detached House

EPC Rating

Download EPC

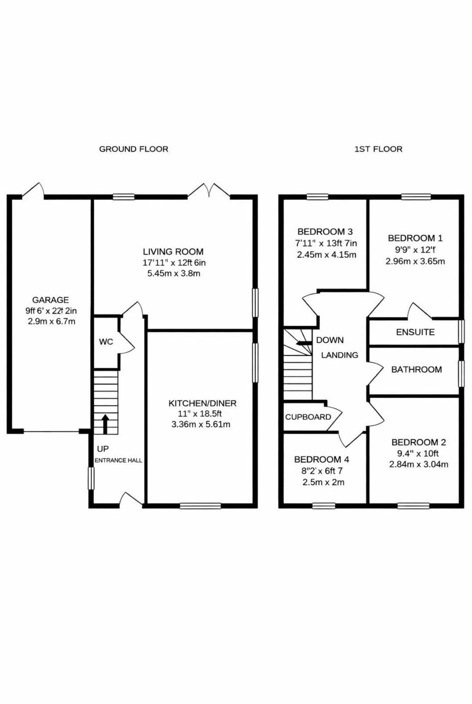
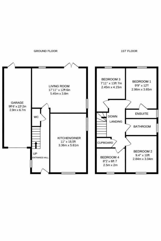
Floor Plan

Download FP

Virtual Tour

Ask a question

Key Features

  • South-facing rear garden
  • Driveway & single garage
  • Heart of Haworth village
  • Spacious living room with log burner
  • Sought-after village location
  • Four Bedrooms
  • UPVC Double Glazing

Full Description

Summary This beautifully presented four-bedroom family home is located in the heart of Haworth village, one of West Yorkshire’s most sought-after locations. Arranged over two floors, the property offers stylish modern living, a south-facing rear garden, driveway, single garage and a well-balanced layout ideal for family life. The home enjoys a pleasant outlook towards the Keighley & Worth Valley steam railway, adding a unique and charming feature, while benefiting from a strong community feel, excellent local schools and countryside walks on the doorstep. Finished to a high standard throughout, this is a well-maintained, turnkey property in a highly desirable village setting. Property Detail The property opens into a welcoming entrance hallway, providing access to the main ground floor accommodation. To the rear of the home is a spacious living room, a bright and inviting space featuring a log-burning stove and direct access to the rear garden, ideal for both everyday living and entertaining. The modern kitchen/diner forms the heart of the home and is fitted with contemporary cabinetry and quality worktops, offering ample space for family dining. A downstairs WC completes the ground floor. To the first floor, the property offers four well-proportioned bedrooms. The principal bedroom benefits from a private en-suite shower room, while the remaining bedrooms are served by a modern family bathroom. The layout provides flexibility for family living, home working or guest accommodation. Externally, the property enjoys a private south-facing rear garden, ideal for outdoor dining, entertaining or children’s play. The rear aspect enjoys a pleasant outlook towards the nearby steam railway line, offering a distinctive and characterful feature. To the front, a driveway provides off-street parking alongside access to the separate single garage. Additional Information The property falls within Council Tax Band E and is subject to an annual service charge of £107, covering the maintenance of communal areas within the development.


Parking

  • Single Garage
  • Driveway
  • On-street

Outside Space

  • Front Garden
  • Rear Garden
  • Enclosed Garden
  • Patio

Heating

  • Gas Central Heating
  • Double Glazing
  • Wood Burner

River View, Haworth, Keighley, BD22

£380,000

offers-over

How much can I borrow?

Find out more