FIND A PROPERTY

West View Road, Norley, Frodsham, WA6

Property Reference: S5921

Listing Status

For Sale

Bedrooms

5

bathrooms

3

Property type

Detached House

EPC Rating

Download EPC

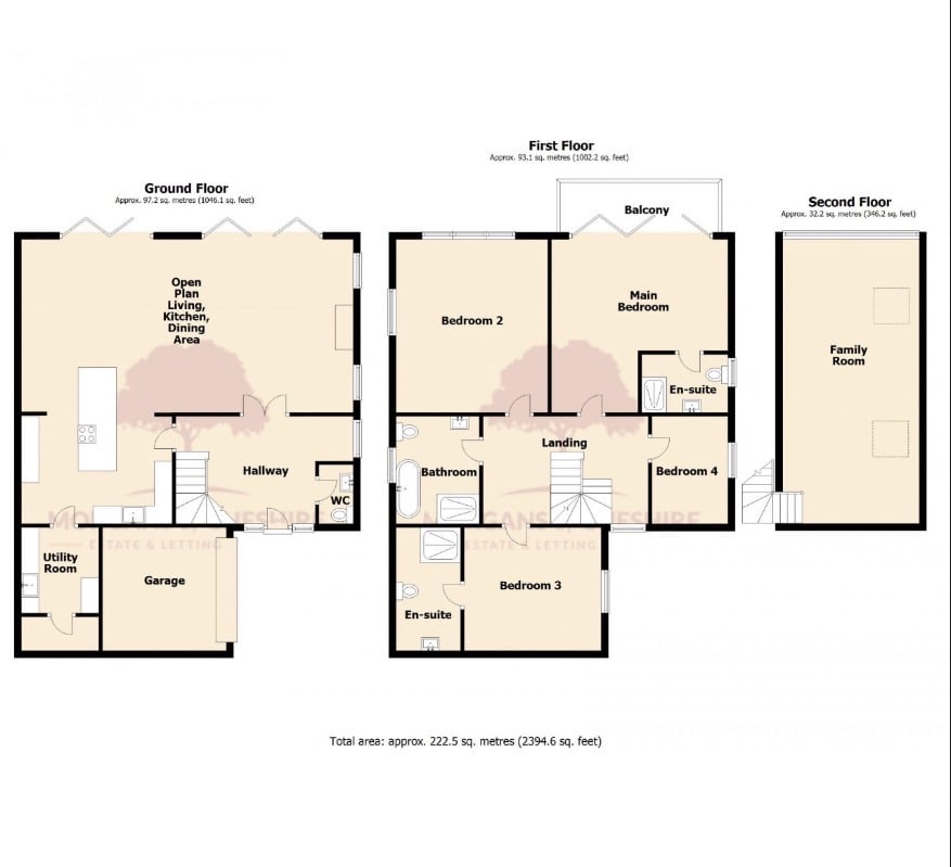
Floor Plan

Download FP

Virtual Tour

Ask a question

Key Features

  • Stunning Contemporary Home with Rural Views, Luxury Open-Plan Living & South-Facing, Wrap-around Garden - Set behind a Gated Driveway on a Private Road in the Heart of the Village, close to Amenities
  • Full-height windows and wide bi-fold doors Elevated balcony with south-facing countryside views including Duck Pond, Fields and Horses. Vaulted top-floor studio / cinema room
  • Luxury bespoke kitchen with quartz island and breakfast bar, and high-end appliances
  • Elegant feature fireplace and premium flooring
  • Underfloor heating throughout the ground floor and excellent insulation (B Rated EPC)
  • Exceptional principal bedroom suite with South-Facing private balcony
  • South-facing private garden overlooking fields, a duck pond, horses and wildlife
  • The top floor features a spectacular vaulted studio/media room—ideal as a home office, cinema room, gym or guest suite.
  • Over 2,400 sq ft of luxury accommodation
  • At the heart of Norley Village, a highly sought-after rural village on the edge of Delamere Forest.

Full Description

VIEWINGS Please log into emoov.co.uk and complete property search for WA68NR. Create a log in then select a date and time to view. A Contemporary Luxury Home With Exceptional Rural Views West View Road, Norley, Frodsham 1. Signature Overview Welcome to Hollyfield, an architect-designed contemporary home offering over 2,400 sq ft of beautifully crafted living space, set on a quiet private lane in the heart of Norley — one of Cheshire’s most desirable rural villages. Completed in 2022, this property blends inspirational modern design with high-quality craftsmanship, full-height glazing, luxurious finishes and a rare connection to the countryside. With uninterrupted views over woodland, a duck pond and open fields, a south-facing garden, and bright, expansive interiors, Hollyfield delivers a lifestyle that feels both sophisticated and serene. 2. Key Highlights Architectural Features Striking modern façade with reclaimed-style brickwork Full-height windows and wide bi-fold doors Elevated balcony with countryside views Vaulted top-floor studio / cinema room Interiors Stunning open-plan living space with floor-to-ceiling glass Luxury bespoke kitchen with quartz island and breakfast bar and high-end appliances Elegant feature fireplace and premium flooring Underfloor heating and excellent insulation (B Rated EPC) Accommodation Four double bedrooms plus a top-floor multi-purpose room with exceptional views Three beautifully appointed bathrooms Exceptional principal bedroom suite with private balcony and bespoke wall to wall, floor to ceiling wardrobes Large, bright landing areas and excellent storage Outside South-facing private garden overlooking a duck pond, local wildlife, horses and the Cheshire countryside Entertaining terrace with glass balustrade Gated driveway and garage Quiet, leafy, private setting just 2 minutes walk from the village green, with excellent local pub and village shop 3. The Heart of the Home — Open-Plan Living The main living space is a breath-taking, light-filled room designed for modern living and entertaining. Full-width glazing frames views across the garden and countryside beyond, while elegant flooring and bespoke joinery create a warm yet contemporary feel. Wide bi-fold doors open the entire space to the terrace, making the kitchen, dining and living areas flow seamlessly together — perfect for gatherings, family life or quiet evenings with the sunset as your backdrop. 4. The Luxury Kitchen The bespoke kitchen combines clean, timeless design with premium materials. Features include: Quartz worktops, island and breakfast bar High-spec integrated appliances Abundant storage Ideal layout for social cooking and dining A separate utility room provides additional practicality and keeps the main space beautifully uncluttered. 5. Bedrooms & Bathrooms Across the first and second floors are five generous bedrooms and three luxurious bathrooms, including: Principal Suite A calm, elegant space with: Private glass-fronted balcony Beautiful rural views Luxury en-suite bathroom Built-in, bespoke wall-to-wall, floor-to-ceiling wardrobe space Top Floor Studio / Guest Suite A spectacular vaulted room that can be used as a: Home office Media room Guest suite Gym or creative studio Its size and design give the home a level of flexibility rarely found in modern properties. 6. Outdoor Living The south-facing garden is designed for relaxation, privacy and enjoyment of its natural surroundings. With a wide terrace, glass balustrade, manicured lawns and views stretching over woodland, a duck pond and Cheshire countryside fields, this space offers year-round tranquillity and a beautiful extension of the home’s interior. 7. Location — Norley, Cheshire Norley is a highly sought-after rural village on the edge of Delamere Forest, offering: Superb walking, cycling and outdoor pursuits Thriving local pubs, shops and community amenities Excellent primary and secondary schools Easy links to Chester, Manchester, Liverpool, Warrington and the M56 Frodsham (5 miles) with independent cafés, restaurants and a vibrant weekly market This is a location where you can enjoy the peace of the countryside without compromising connectivity. 8. Technical Details EPC Rating: B Council Tax Band: G – Cheshire West & Chester Tenure: Freehold 9. Summary Hollyfield is a home of exceptional quality — architecturally striking, beautifully finished, energy-efficient and set in an idyllic position with captivating. ever-changing views that beautifully showcase the Cheshire countryside across all four seasons. It offers the best of contemporary luxury living, on a private road at the heart of a truly peaceful village with a warm village community. This is a rare opportunity to own a modern Cheshire home of this calibre.


Parking

  • Gated
  • Driveway
  • Single Garage

Outside Space

  • Rear Garden
  • Balcony
  • Enclosed Garden
  • Patio

Heating

  • Double Glazing
  • Gas Central Heating
  • Under Floor

West View Road, Norley, Frodsham, WA6

£837,500

How much can I borrow?

Find out more