FIND A PROPERTY

Yannon Towers, Teignmouth, TQ14

Property Reference: S5894

Listing Status

For Sale

Bedrooms

5

bathrooms

2

Property type

End of Terrace

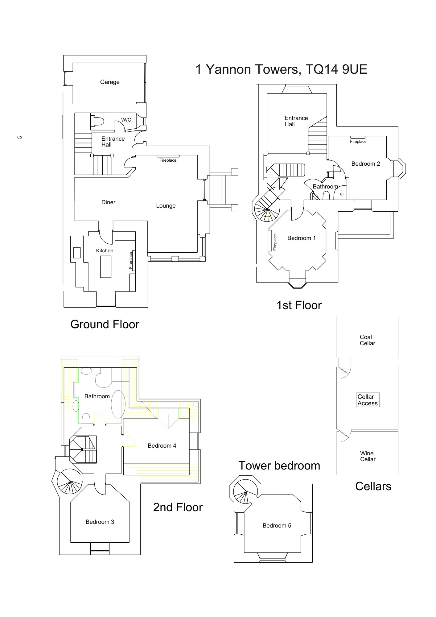
Floor Plan

Download FP

Virtual Tour

Ask a question

Key Features

  • Outstanding sea and estuary views
  • Exceptional period residence styled as Balmoral
  • Quiet, south facing, residential, cul-de-sac
  • Large impressive rooms and spacious cellar
  • Close to local amenities
  • Large gardens with ample parking
  • Unique tower viewing platform

Full Description

A Grade 2 listed period home with outstanding sea and estuary views. This high-quality period residence includes many impressive internal features. It is located in a quiet residential cul-de-sac in the popular seaside towns of Teignmouth. Built in the 1850s, two years before Balmoral, by the same group of architects, it was visited by royal associates shortly before Balmoral was commissioned and built with many similar internal features. Over the years, its residents and visitors have included descendants of the Russian royal family and Vivien Leigh and her husbands. She may have practised for 'Gone with the Wind' on the grand staircase. The large, mostly south-facing windows are double-glazed with secondary, sealed units to keep the building warm in winter but with pelmets to shield the sun in summer. Originally part of a large mansion this property was converted from three flats to a traditional house house in 2009. This included complete rewiring, replumbing, insulating and soundproofing to modern standards etc. Although designed as a beautiful family home, the property is currently run as a holiday let and has great potential for additional income as a high-end B&B or from holiday units in the extensive grounds. The property is freehold, probably council tax band E, but currently unrated.


RECEPTION HALL 4.00m x 4.14m

An impressive entrance hall with parquet flooring, column radiator and trap door access to the cellar. A grand staircase leads past an externally double-glazed, stained glass window, to the upper floors.

CLOAKROOM/WC 1.18m x 2.57m

The grand, antique WC has been converted to use a modern cistern. The room also contains a large sink and a tap fitting to run a hose outside.

SITTING/DINING ROOM 6.50m x 8.30m

A fabulous room with oak panelled wall, solid oak door and parquet flooring. The fireplace, ceiling and door are like Balmoral. The spacious lounge has conservatory-style windows with amazing views. The dining area has can seat 10 adults. Two column radiators, a Nest thermostat and two chandeliers.

KITCHEN/BREAKFAST ROOM 3.90m x 4.30m

Another grand room with high, ornate ceiling, antique lights, Victorian tiles, marble fireplace and column radiator. A large window with original shutters provides more amazing sea views. A comprehensive range of units. The central island includes a fridge, sink, dishwasher and breakfast bar.

FIRST FLOOR LANDING 3.12m x 4.70m

A spacious first-floor landing provides lots of storage along with access to the tower room and second floor stairs, two first floor bedrooms and a toilet/shower room.

BEDROOM 1 3.97m x 3.97m

A lovely octagonal room with ornate coving, quality stripped pine door and impressive white marble fireplace. A deep bay window provides tremendous panoramic views from the sea to the moors. Four opposing sides of the octagon provide recessed cupboard space and a false door with a column radiator.

BEDROOM 2 3.90m x 4.43m

Another large, feature room with marble fireplace, quality stripped pine door, picture rails and column radiator. A deep bay window provides views over the drive and out to sea along the Devon coast.

FIRST FLOOR SHOWER ROOM 1.40m x 2.20m

Jack and Jill doors from the bedroom and hall provide access to a modern bathroom with enclosed shower cubicle, toiled and hand basin. Features include a marble worktop and shelf, ladder style towel radiator, extractor fan, and medicine cabinet.

SECOND FLOOR LANDING 3.00m x 3.00m

Contains enough space for a child's cot and a cupboard it also includes the wall-mounted Worcester boiler and double-glazed skylight. Originally part of the old servants' quarters the second floor rooms exhibit similar proportions to a normal house providing a less grand, but more snug feel.

BEDROOM 3 4.04m x 4.06m

The low window in this prominent, south-facing room allows residents to lie in bed and enjoy the breathtaking views across Teignmouth, Shaldon and the Devon coast. A feature fireplace and two radiators make for a lovely snug environment.

BEDROOM 4 2.95m x 3.91m

Another sizeable but charming room with the sloping roof beams and a small feature alcove. The window provides more amazing views from its elevated position.

SECOND FLOOR BATHROOM 3.12m x 4.55m

A large and luxurious bathroom comprising a free-standing, roll-top bath, a curved shower cubicle, two pedestal sinks and a modern toilet. The dormer window roof has been covered with insulation and a long-lasting Roofkrete to reduce the need for regular felt replacement.

BEDROOM 5 4.04m x 4.06m

A fabulous and unique room with large, triple aspect windows that give breathtaking views from the sea, estuary and up to the moors. Features include a servants' call button, fireplace, coving and picture rail. The room is accessed via a spiral stone staircase which also goes up to the roof terrace.

CELLAR 4.00m x 10.00m

A large cellar with 3 sizeable rooms runs from under the dining room, hall to the garage. One room has slate wine racks, covering two walls. Another was the original coal cellar. All rooms have stone floors and remain dry throughout the year; they could be used for a gym or games room etc.

OUTSIDE

The drive includes an extensive private parking area, for four to six cars. The single garage has power and an antique fireplace. The extensive south facing grassed garden includes a gravel patio area and raised flat lawn. Another area has a small patio and garden shed.

Parking

  • Single Garage

Outside Space

  • Front Garden
  • Rear Garden

Heating

  • Gas Central Heating
  • Double Glazing

Yannon Towers, Teignmouth, TQ14

£750,000

How much can I borrow?

Find out more