FIND A PROPERTY

Blackbrook Drive, Chinley, SK23

Property Reference: S5869

Listing Status

SSTC

Bedrooms

4

bathrooms

3

Property type

Semi-detached House

EPC Rating

Download EPC

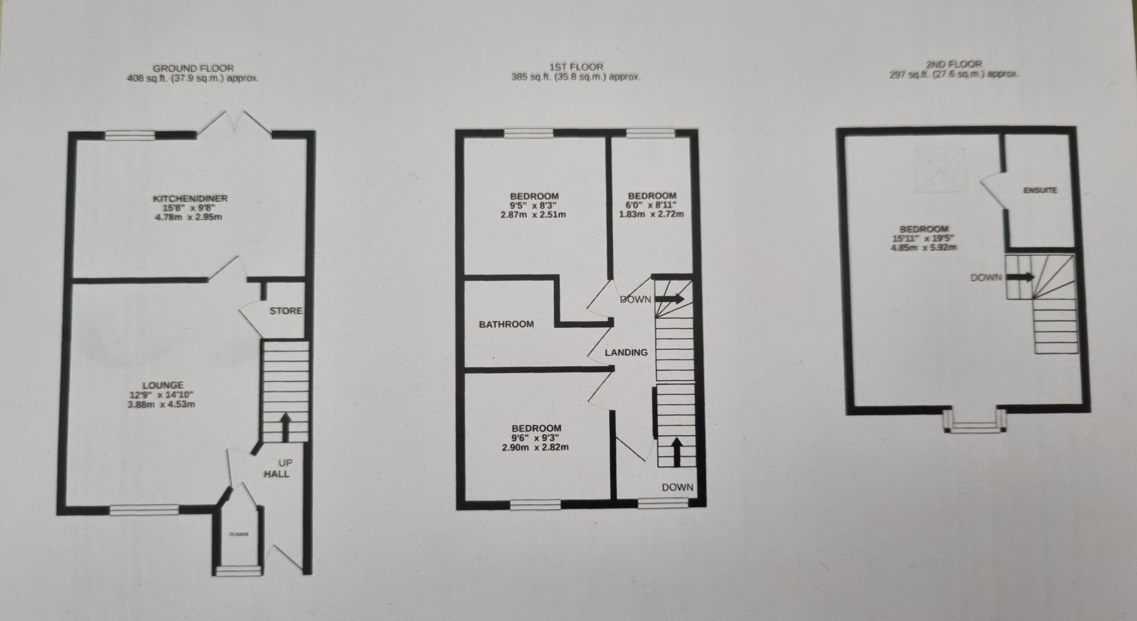
Floor Plan

Download FP

Virtual Tour

Ask a question

Key Features

Full Description

Lovely freehold property in the popular Forge Manor estate in Chinley. Bright spacious house built over 3 floors. Built in 2017. Ground floor - Hallway, WC, living room then kitchen dining area leading to the garden. First floor - 3 bedrooms and a bathroom. Second floor - large bedroom with lovely views and en suite. Single garage with long driveway for up to 3 cars. Back garden enclosed and not over looked. Close to train station, schools, shops and pubs. Great walks straight from your doorstep.


Parking

  • Garage
  • Driveway

Outside Space

  • Rear Garden
  • Front Garden

Heating

  • Double Glazing
  • Gas Central Heating

Blackbrook Drive, Chinley, SK23

£349,995

How much can I borrow?