FIND A PROPERTY

Holt Place, Coach House Mews, Ferndown, BH22

Property Reference: S5722

Listing Status

For Sale

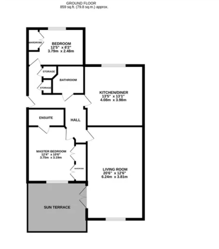
Bedrooms

2

bathrooms

2

Property type

Ground Floor Flat

EPC Rating

Download EPC

Floor Plan

Download FP

Virtual Tour

Ask a question

Key Features

  • Allocated Parking
  • Visitor Parking
  • Communal Garden
  • Gas Central Heating
  • Kitchen/Diner
  • Dual aspect living room
  • 2 double bedrooms both with fitted wardrobes
  • En suite to master bedroom
  • Southerly aspect private enclosed terrace
  • Kitchen with integrated appliances
  • Double glazing

Full Description

This immaculate ground floor apartment is situated within a sought after development of purpose built apartments on the edge of Ferndown, not far from the town centre, local schools, local shops and amenities which include two supermarkets, health centre, leisure centre and theatre. There are local bus services to the neighbouring towns of Bournemouth and Poole and only a short drive away to the A31 with its excellent commuter links to Bournemouth, Southampton and London. 974 years remaining on lease Council tax band E Ground rent £400 per annum Maintenance approx £2200 per annum


Holt Place, Coach House Mews, Ferndown, BH22

£300,000

How much can I borrow?

Find out more