FIND A PROPERTY

Wickenby Crescent, Lincoln, LN1

Property Reference: S5701

Listing Status

For Sale

Bedrooms

3

bathrooms

1

Property type

Terraced House

EPC Rating

Download EPC

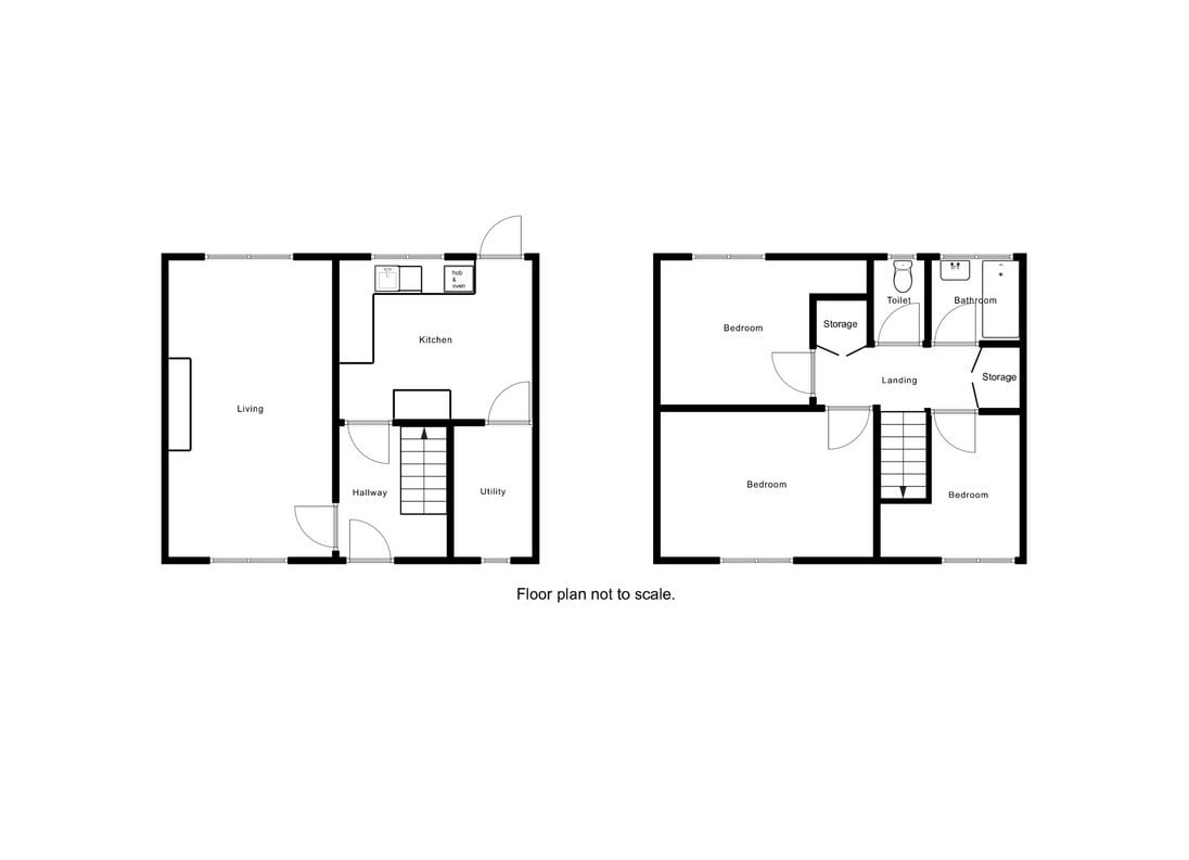
Floor Plan

Download FP

Virtual Tour

Ask a question

Key Features

  • Freehold property
  • 3 good sized bedrooms
  • Spacious living room
  • Parking bay to the front of house
  • Fitted kitchen in white and wood look
  • Gas central heating
  • Excellent potential to modernise and add value
  • Situated in a popular residential location
  • Conveniently situation for schools and shops
  • Front, and enclosed rear, garden, easy maintenance with fruit bushes

Full Description

A 3 bed, freehold, spacious mid-terraced house in the popular uphill residential area of Lincoln. 88 sq m. Located in walking distance of local primary schools, secondary school, leisure centre, shops and doctors. The accommodation comprises entrance hall, lounge, kitchen diner and utility on the ground floor. First floor has three bedrooms, WC, bathroom and storage cupboards on the landing with access to loft. Outside there is a front garden and an enclosed rear garden with sheds, greenhouse and fruit bushes. Gas central heating. Council Tax Band A EPC C


Entrance hall 1.80m x 1.90m

External door to front garden, under-stairs cupboard housing gas and electric meters, and stairs to first floor. Professionally fitted smoke alarm.

Lounge 3.35m x 6.00m

Front window facing west and rear window facing garden, chimney breast, radiator. Three double power sockets, TV aerial socket and broadband socket.

Kitchen/diner 3.30m x 3.90m

Window and external door to rear. Fitted with a range of wall and base units, sink with drainer, built-in single electric oven, four ring induction hob, space and plumbing for washing machine. Four double electric sockets.

Utility Room 1.90m x 2.60m

Window to front aspect and houses wall mounted gas combi boiler. One double electrical socket.

Landing 1.05m x 3.15m

Two full height storage cupboards and access to the loft. One double electrical socket. Professionally fitted smoke alarm.

Bedroom One 3.00m x 4.30m

Window to front aspect, radiator, two double electrical sockets.

Bedroom Two 2.90m x 3.30m

Window to rear aspect, storage space, radiator and two double electrical sockets.

Bedroom Three 2.90m x 3.30m

Window to front aspect, radiator, two double electrical sockets.

WC

Fitted with low level WC, window to rear of property.

Bathroom 1.70m x 1.80m

Fitted with panel bath, hand basin and radiator with a window to the rear of property.

Outside

Fenced front garden with flower bed and a path to the front door, space for bins. At the rear of the house is an enclosed garden with a greenhouse, two sheds and established with mature shrubs and fruit bushes including strawberries, raspberries, blackcurrants, redcurrants, rhubarb and gooseberries.

Parking

  • On-street

Outside Space

  • Rear Garden
  • Front Garden

Heating

  • Gas Central Heating

Wickenby Crescent, Lincoln, LN1

£169,000

How much can I borrow?

Find out more