FIND A PROPERTY

Seagers Court, Audley Road, Chippenham, SN14

Property Reference: S5653

Listing Status

SSTC

Bedrooms

2

bathrooms

1

Property type

Flat/Apartment

EPC Rating

Download EPC

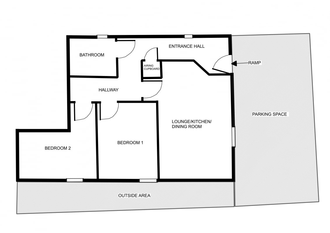
Floor Plan

Download FP

Virtual Tour

Ask a question

Key Features

  • Accessible ground floor flat with ramped access, accessible shower with built in seat and outside space with room for storage and a washing line
  • Tenure - The property comes with a share of the freehold and there is no ground rent. The lease was extended in 2024 for an additional 999 years, giving a remainder of 1082 years.
  • Investment opportunity - potential rental income of over £1000 PCM

Full Description

Unique opportunity with no onward chain. Accessible ground floor flat in a prime location within 10 mins walking distance of train station, town centre, cinema, several gyms, John Coles Park and local schools. Benefits from driveway parking immediately outside the property's own front door. Quick access by road to Junction 18 of the M4 (10 mins). As an owner of an apartment within this development you will own a share in the management company and have a say in the running of the building and its services. The current monthly service and buildings insurance charge is £80 PCM/£961 per annum; there is no ground rent).


Entrance Hall 1.08m x 7.60m

Generous hallway with space for shoe storage and coat hooks, a large night storage heater, storage/airing cupboard with slatted shelving above Economy 7 hot water tank, doors to the bathroom, bedrooms and living/kitchen/dining room.

Open plan Lounge/Kitchen/Diner 3.30m x 5.60m

Modern, open plan living space. Double glazed window to front, range of floor and wall units, stainless steel sink, electric oven, electric hob, extractor fan, plumbing for a washing machine and space for a fridge freezer, night storage heater, space for a table and chairs and sofa.

Bedroom One 2.70m x 3.55m

Double bedroom with double-glazed window, space for wardrobe/chest of drawers and electric panel heater.

Bedroom Two 3.50m x 3.62m

Double bedroom with double-glazed window, space for wardrobe and electric panel heater.

Bathroom 1.85m x 2.10m

Accessible shower with built in seat, double-glazed window, extractor fan, heated towel rail with timer, sink, toilet and tiled splashbacks.

Outside space 1.10m x 9.60m

Gated outside space at the side of the property which can be used for storage of bicycles/scooters/mobility scooters and hanging washing.

Parking

  • Driveway

Outside Space

Heating

  • Night Storage
  • Electric

Seagers Court, Audley Road, Chippenham, SN14

£175,000

guide-price

How much can I borrow?