FIND A PROPERTY

Rodway Road, Bristol, BS16

Property Reference: S5650

Listing Status

SSTC

Bedrooms

3

bathrooms

1

Property type

Terraced House

EPC Rating

Download EPC

Floor Plan

Download FP

Virtual Tour

Ask a question

Key Features

  • Beautifully Presented Recently Refurbished
  • Generous Rear Garden
  • Ample Off-Road Parking
  • Utility Room
  • Side Access to Garden
  • Three Good-sized Bedroom

Full Description

Beautifully Presented 3-Bedroom Family Home with Large Garden and Ample Off-Road Parking. Situated in the popular area of Mangotsfield on Roadway Road, this beautifully presented three-bedroom terraced home offers generous living space and excellent convenience, all within walking distance of local schools and amenities. Finished to an exceptional standard throughout, the home combines modern style with everyday comfort. It features bright and spacious living areas, complemented by ample built-in cupboard space throughout, ensuring plenty of practical storage for family life. Outside, there’s a large private garden with side access, ideal for bikes or bins, and a spacious decking area, perfect for relaxing, entertaining, or enjoying outdoor family time. The property also benefits from a stoned driveway providing off-road parking for multiple vehicles, adding both convenience and practicality. With its sought-after location, family-friendly layout, and excellent access to shops, schools, and transport links, this property represents a fantastic opportunity for anyone seeking comfort, style, and convenience in Mangotsfield. Council Tax Band D.


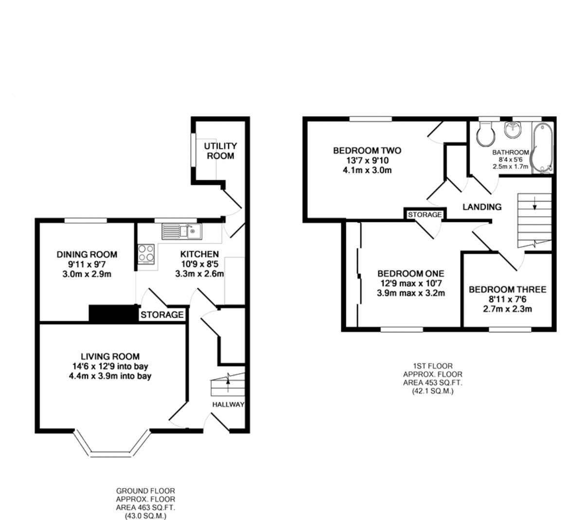
Lounge 4.40m x 3.90m

A beautifully presented bay-fronted lounge offering a bright and welcoming space with plenty of natural light. The feature bay window adds character and charm, creating an ideal spot for relaxing or entertaining. Tastefully decorated, this room combines comfort and style at the heart of the home.

Kitchen 3.30ft x 2.60ft

A well-planned kitchen fitted with integrated appliances. This inviting space also benefits from a useful pantry, providing excellent additional storage. A large rear window offers a pleasant view over the garden, allowing natural light to flood the room.

Dining Room 3.00m x 2.90m

Situated to the rear of the property, the dining room provides the perfect setting for family meals or entertaining guests. A large window overlooks the garden, filling the room with natural light and offering a peaceful outlook. With easy access to the kitchen, it offers a seamless flow throughout.

Bedroom 1 3.90m x 3.20m

A spacious main bedroom complete with fitted wardrobes, providing plenty of storage space and a comfortable setting for rest and relaxation. Ample room for a king-size bed and additional furniture.

Bedroom 2 4.10m x 3.00m

A generous second bedroom featuring fitted cupboard for excellent storage. Ideal as a guest room, children’s room, or home office, offering both comfort and practicality.

Bedroom 3 2.70m x 2.30m

A versatile third bedroom with fitted wardrobe, perfect for use as a nursery, study, or dressing room. Compact yet functional, this space offers great flexibility.

Bathroom 2.50m x 1.70m

A neatly presented family bathroom fitted with a traditional three-piece suite comprising a combined bath and overhead shower, wash basin, and WC. The space is complemented by a heated towel radiator, offering extra comfort and practicality

Parking

  • Driveway

Outside Space

Heating

  • Gas Central Heating

Rodway Road, Bristol, BS16

£350,000

offers-over

How much can I borrow?