FIND A PROPERTY

Grampian Place, Great Ashby, SG1

Property Reference: S5577

Listing Status

For Sale

Bedrooms

2

bathrooms

1

Property type

Terraced House

EPC Rating

Download EPC

Floor Plan

Download FP

Virtual Tour

Ask a question

Key Features

  • CHAIN FREE
  • Modern unfurnished two bedrooms terrace coach house with Garage & Parking in quiet cul-de-sac in Great Ashby, Stevenage
  • Garage & Parking – integrated garage (internal access), allocated parking plus visitor spaces
  • Lounge/Dining Room – bright, light-filled space with Juliet balcony
  • Modern Kitchen – fully fitted with integrated appliances
  • Gas central heating, double glazing, new boiler
  • Family Friendly Location – quiet cul-de-sac next to playground and walking/cycling paths
  • Walking distance to shops, pharmacy, community centre, and bus stops
  • Excellent School Catchment – Outstanding/Good primary & secondary schools nearby
  • Short drive to Lister Hospital, Stevenage Railway Station and A1 Motorway with links to Central London

Full Description

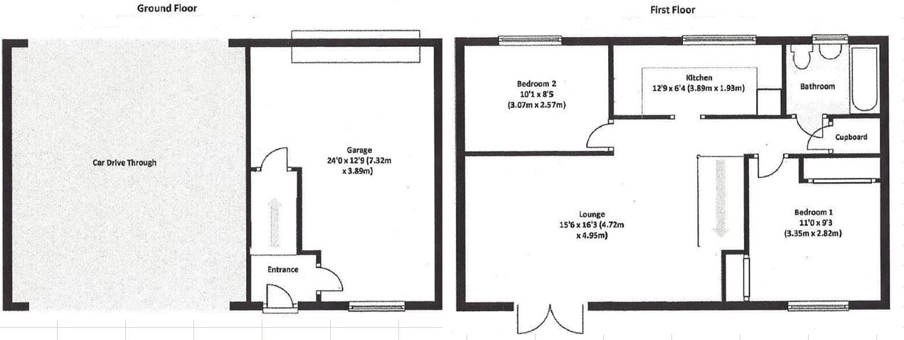
Bright and airy 2-bedroom terrace coach house in a quiet cul-de-sac of Great Ashby, Stevenage. Features integrated garage, allocated parking, visitor spaces, and Juliet balcony, plus a spacious lounge/dining room and modern kitchen. Walk to local shops, playground, and Outstanding schools. Long lease. No upper chain. Ideal for families and commuters with easy access to Stevenage Station and the A1. This modern, unfurnished 2-bedroom coach house is tucked away in a quiet cul-de-sac in Great Ashby, Stevenage, perfect for families and professionals. The lounge/dining room is bright and airy with Juliet balcony, ideal for relaxing or entertaining. The modern kitchen flows into the living space and comes with integrated appliances including a dishwasher, washing machine, and fridge/freezer. Both bedrooms are double rooms one with built-in wardrobes, and the bathroom is contemporary with a curved bath and storage. The garage beneath the property provides internal access and under-stairs storage. There is allocated parking next to the property and plenty of visitor spaces. Outside, the front lawn and flowerbeds are low maintenance. Location & Amenities: Walk to local shops, pharmacy, playground, community centre, and bus stops. Quick access to Stevenage Railway Station (3.9 miles) , Lister Hospital (2.6 miles), and the A1 Motorway (3 miles), making this home ideal for commuters. With double glazing, gas central heating, a 106-year lease and no upper chain, this property is ready to move in. Service charges (£1,300/year) cover building insurance, window cleaning, and garden maintenance.


Hall

Welcoming entrance with side radiators and stairs leading to the upper floor. There is a side door integrating the hall to the garage. The main accommodation is on the first floor.

Lounge/dinning 4.72m x 4.95m

Spacious and inviting lounge/dining offers a contemporary living space with spotlights, plenty of natural light and a Juliet balcony to the front.

Kitchen 3.89m x 1.93m

Kitchen designed with modern living in mind. Equipped with dishwasher, washing machine and fridge freezer. The windows overlook the back of the property. The kitchen flows into the lounge/dinning.

Bathroom

Modern bathroom featuring white tiles, storage and a curved bath. The windows provide plenty of natural light.

Bedroom 1 3.35m x 2.82m

Bright and airy bedroom offers versatile space, featuring white walls with two spacious sliding doors wardrobes. The windows face the front of the house and provides a lot of natural light.

Bedroom 2 3.07m x 2.57m

Well decorated space with fitted carpet and windows to the back of the property great for family or home office.

Garage 7.32m x 3.89m

Located underneath the property, the garage automatic doors are accessed through the back of the property next to a shrub flowerbed. A side door connects it with the front hallway. There is additional storage underneath the stairs. The garage has recently been used as a gym.

Parking

Outside Space

Heating

leasehold

Ground Rent

£100

Annual Service Chanrge

£1299.99

Years Remaining

106

Grampian Place, Great Ashby, SG1

£295,000

How much can I borrow?

Find out more