FIND A PROPERTY

Cross Road, Brighton, BN42

Property Reference: S5563

Listing Status

SSTC

Bedrooms

2

bathrooms

2

Property type

Terraced House

EPC Rating

Download EPC

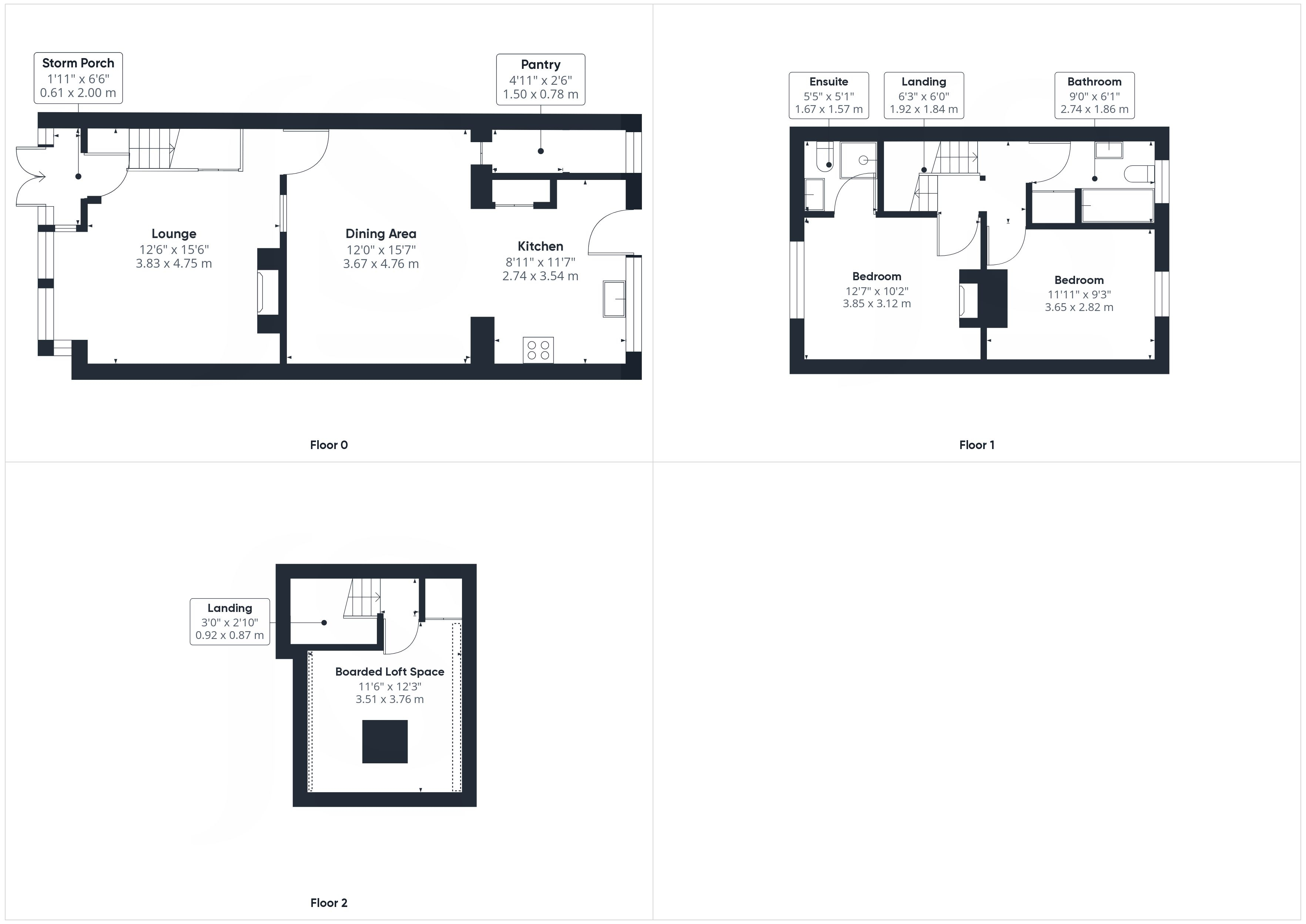
Floor Plan

Download FP

Virtual Tour

Ask a question

Key Features

  • Extended two-bedroom character home in a highly sought-after location
  • Well presented throughout, spread over 1,119 square feet
  • Additional loft room with staircase
  • En-suite shower room to master bedroom
  • Modern fitted family bathroom
  • Two generous reception rooms

Full Description

Extended and well-presented two double bedroom house situated in a highly desirable residential location just off Southwick Village Green. The property offers bright and deceptively spacious accommodation, improved by the present owners, with features including two reception rooms, an extended kitchen, utility room, two first-floor double bedrooms, modern fitted en-suite shower room and family bathroom. A staircase leads to a usable loft area. A new gas central heating system was installed in 2017, and the property is double-glazed. Externally, there is a rear patio garden that has the benefit of sunshine throughout the day and off-road parking at the front. Southwick Square, with its shops, library, doctor’s surgery, community centre and transport links, is a short walk away. Southwick railway station provides coastal routes and connections to London. Sought-after schools rated “outstanding” by Ofsted are within walking distance, and the property is within this catchment.


Entrance Porch

Double-glazed French doors, tiled floor, wooden front door with patterned glass panels.

Lounge 15.80ft x 14.11ft

Box bay window to front, large radiator, period feature cast-iron fireplace, stairs to first floor with storage cupboard, thermostat.

Open Plan Kitchen / Dining Room 22.20ft x 15.90ft

Dining Room: Radiator, fitted seating with under-seat storage, access to utility room. Kitchen: Drawer and wall units with lighting, roll-edge work surfaces, stainless steel sink, space for oven, washing machine and fridge/freezer, storage larder / cupboard, double-glazed window and rear door.

Utility Room 9.80ft x 2.50ft

Practical additional space with wash hand basin and storage potential, keeping the main kitchen uncluttered.

Bedroom 1 12.80ft x 10.10ft

Great-sized double bedroom with front-facing window, radiator, decorative cast-iron fireplace, picture rail. Ensuite attached.

En-suite Shower Room

Modern suite with shower cubicle, WC, wash basin, heated towel rail, spotlights.

Bedroom 2 12.00ft x 9.30ft

Spacious double bedroom, rear window, radiator, decorative fireplace, picture rail.

Family Bathroom

Panel bath with dual shower options, WC, wash basin, heated towel rail, spotlights, rear window and useful full-height storage cupboard.

Second Floor Loft room 12.30ft x 11.50ft

A versatile additional room with Velux window, radiator and eaves storage, perfect as a home office, hobby space, or occasional guest accommodation. The boiler is also housed here, installed new in 2017.

Parking

  • Driveway

Outside Space

  • Front Garden
  • Patio
  • Enclosed Garden

Heating

  • Gas Central Heating

Cross Road, Brighton, BN42

£425,000

offers-in-excess

How much can I borrow?