FIND A PROPERTY

Clos y Berllan, Newbridge-on-Wye, LD1

Property Reference: S5397

Listing Status

For Sale

Bedrooms

3

bathrooms

2

Property type

Detached House

EPC Rating

Download EPC

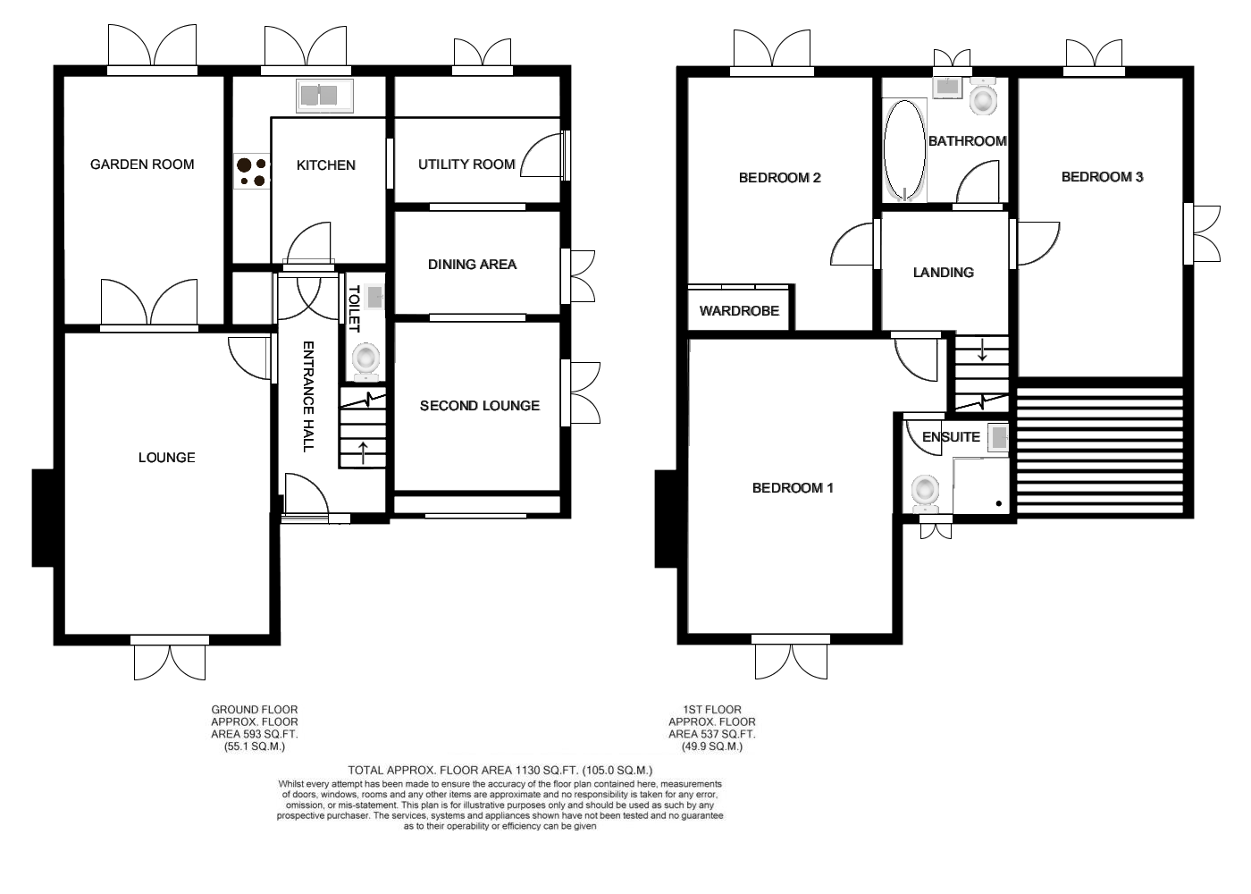
Floor Plan

Ask a question

Virtual Tour

Ask a question

Key Features

  • Paved Driveway
  • Front Garden
  • Rear Garden
  • Patio
  • Oil
  • The reception room to the rear of the property has French windows which open onto the back patio. The patio has an electric canopy to provide shade, if required.
  • Parking space at the front of the house for 2 vehicles, with capacity for further spaces
  • The large master bedroom has an ensuite shower room and toilet. This is in addition to the main bathroom and downstairs toilet.
  • The kitchen includes an induction cooker and dishwasher. There is a spacious utility room adjoining the kitchen.

Full Description

The house is freehold and in Council Tax band E. Well presented detached family home in the bustling village of Newbridge-on-Wye is situated in a quiet cul-de-sac on the outskirts. The village has a primary school, two pubs, a post office, two churches and has excellent links to the nearby towns of Built Wells, Llandrindod Wells and Rhayader. The property is situated high above the river Wye and backs onto ancient woodland. The rear garden offers a unique space of tranquility and privacy, surrounded by nature. The garden contains a large hut, which has an electricity supply.


Lounge 3.30m x 4.60m

A spacious lounge features an open fireplace with a chimney. It is front-facing and overlooks the front garden. Double doors separate the lounge from the rear garden room, providing flexible space for both areas. There are twelve plug sockets and two USB charging points for convenience.

Garden Room 4.00m x 2.50m

Located at the rear of the property, the garden room provides natural light and has French windows which open onto the back patio, providing a clear view of the private back garden. There is a central heating radiator and six plug sockets within the room.

Kitchen 2.55m x 3.00m

The kitchen is at the rear of the house, adjacent to the garden room and contains an induction hob and cooker hood, with extractor fan. There are built in units, including a dishwasher and free-standing fridge. The kitchen has a radiator and five plug sockets.

Utility area 2.65m x 3.50m

A versatile space which includes an area for dining as well as coat and shoe storage. Adjoining the kitchen, it has a spacious worktop and fitted cupboards, heating control panel and four plug sockets. The external door leads onto the side patio, giving access to the back garden and front drive.

Second lounge 2.65m x 3.00m

A cosy second lounge located next to the utility/dining area providing additional space for socialising and relaxing. The window overlooks the side patio and contains four sockets and a radiator. This additional space was a conversion from the original, integrated garage.

Downstairs toilet

The downstairs toilet includes a basin pedestal, extractor fan and storage space. This is a useful convenience on the ground floor.

Bedroom 1 4.10m x 5.50m

The very spacious master bedroom includes an en-suite shower room with toilet, basin pedestal and extractor fan and wall-mounted radiator. Located at the front of the house, it overlooks the drive and front garden. The bedroom has a radiator a four plug sockets.

Bedroom 2 3.00m x 3.90m

The rear second bedroom overlooks the garden and includes built-in wardrobes on one side. The room comfortably fits a double bed and is entered from the upstairs landing. There is a radiator in the room and five sockets. The electric socket for the patio canopy is plugged into this room.

Bedroom 3 2.70m x 4.65m

This generously proportioned bedroom extends the length of the house and has windows on two sides. It is a bright and airy space and can comfortably fit a double bed. The bedroom has a radiator and four plug sockets.

Bathroom 2.00m x 2.10m

The bathroom is spacious and includes an electric shower over the bath and glass shower panel. The bathroom also contains a radiator and towel rail as well as shaver socket.

Clos y Berllan, Newbridge-on-Wye, LD1

£299,950

offers-over

How much can I borrow?

Find out more