FIND A PROPERTY

Elizabeth Crescent, Chester, CH4

Property Reference: S5277

Listing Status

For Sale

Bedrooms

5

bathrooms

7

Property type

Land

Floor Plan

Download FP

Virtual Tour

Ask a question

Key Features

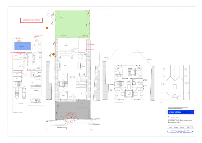
  • A rare opportunity, Plot with full planning permission for a stunning 7474 Sqft Home

Full Description

**A Rare Opportunity for a developer or to self build a dream family home. Chester and Cheshire West planning ref 25/00046/FUL Welcome to 48 Elizabeth Crescent, a desirable plot of land situated in Handbridge, boasting full planning permission for a stunning 7474 Sqft home. This is an exceptional opportunity to build a dream family home. **The Plot** The plot measures approximately 0.5 acres, the current planning permission allows for a 7474 Sqft home, offering endless possibilities for design and layout. **The Local Area** Located in the prestigious CH4 7AZ postcode, 48 Elizabeth Crescent is nestled in a highly desirable area, renowned for its excellent schools, transport links, and local amenities. The historic city centre is within walking distance, offering a range of boutique shops, restaurants, and cultural attractions. **The Planning Permission** The full planning permission in place allows for a stunning 7474 Sqft home, complete with: The floor plans can be totally remodelled to the buyers preference, an amazing overall size of 7474 Sqft with leisure suite, swimming pool, gym, art studio or cinema room and bar. Underground garage and workshop with car lift. stunning master suite, generous bedrooms, fantastic open plan living with further reception rooms. sunken garden for basement, large rear garden with terrace, overlooking the meadows and city sky line. Ground investigation and infiltration testing has been carried out and the full report is available


Parking

  • Garage
  • Driveway

Outside Space

  • Front Garden
  • Rear Garden

Heating

  • Under Floor

Elizabeth Crescent, Chester, CH4

£950,000

offers-in-region

How much can I borrow?

Find out more