FIND A PROPERTY

Commercial Street, Higham Ferrers, NN10

Property Reference: S5012

Listing Status

SSTC

Bedrooms

3

bathrooms

1

Property type

Terraced House

EPC Rating

Download EPC

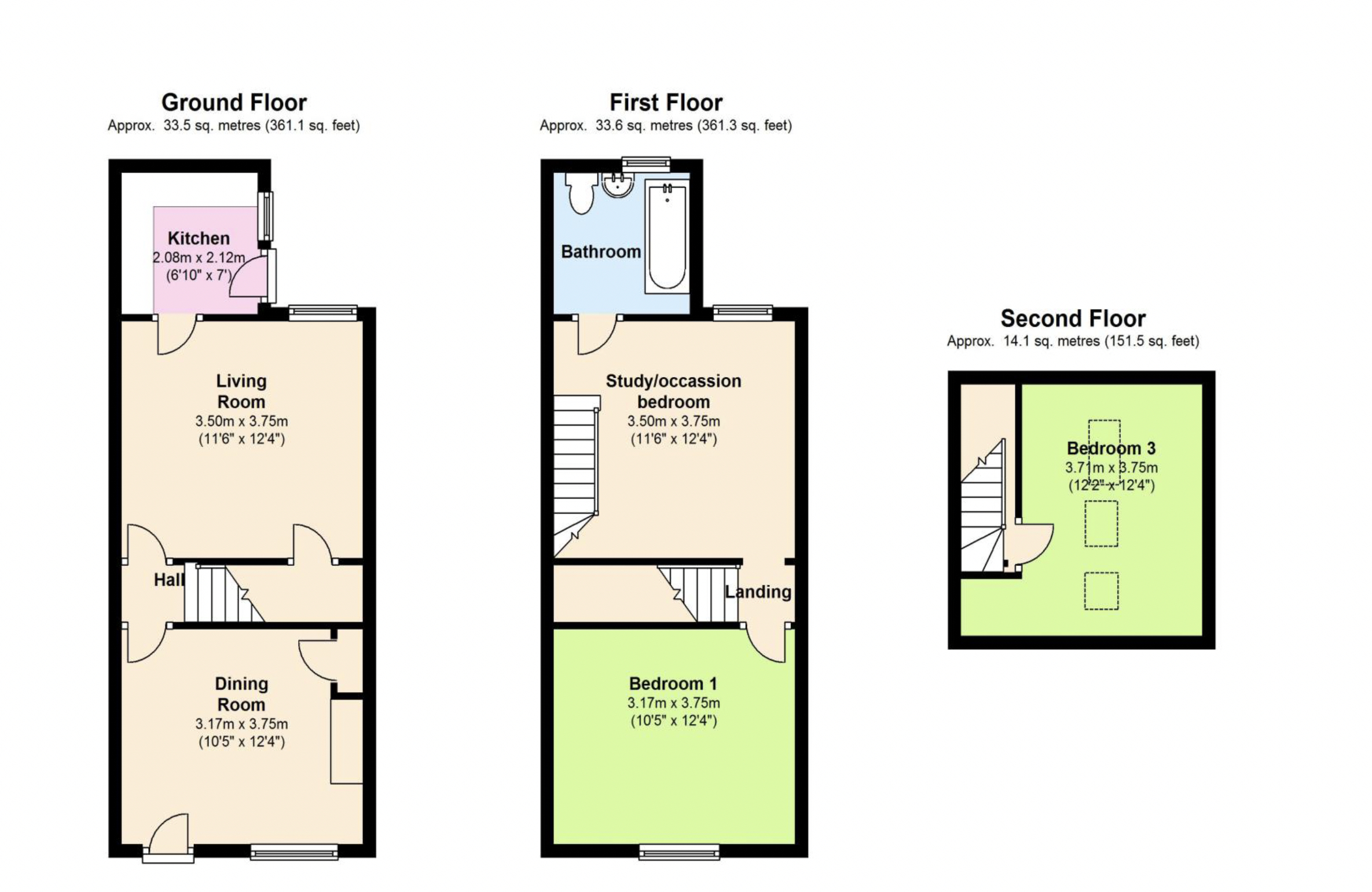
Floor Plan

Download FP

Virtual Tour

Ask a question

Key Features

  • Walking distance to Rushden Lakes
  • New carpets throughout
  • Secluded main bedroom - loft conversion
  • Well presented throughout
  • Great location - close to the high street
  • Just 2.5 miles to Stanwick Lakes
  • Original feature fireplaces
  • Patio Garden

Full Description

A deceptive 3 bedroom period town house located in the popular market town of Higham Ferrers and within walking distance to the Rushden Lakes shopping and leisure complex. With original feature fireplaces and newly carpeted floors to the ground level, the house has the benefit of a 2nd floor loft conversion providing a double bedroom, turning the original second bedroom now with a staircase into a study area/third bedroom (perfect for working from home). Outside to the rear is a lovely patio garden which compliments this character property. An ideal property for first time buyers, investors or a couple looking to downsize.


Parking

  • On-street

Outside Space

  • Rear Garden

Heating

  • Gas Central Heating

Commercial Street, Higham Ferrers, NN10

£180,000

offers-in-excess

How much can I borrow?