FIND A PROPERTY

Somerton Close, Bridgwater, TA6

Property Reference: S4817

Listing Status

For Sale

Bedrooms

4

bathrooms

4

Property type

Town House

EPC Rating

Download EPC

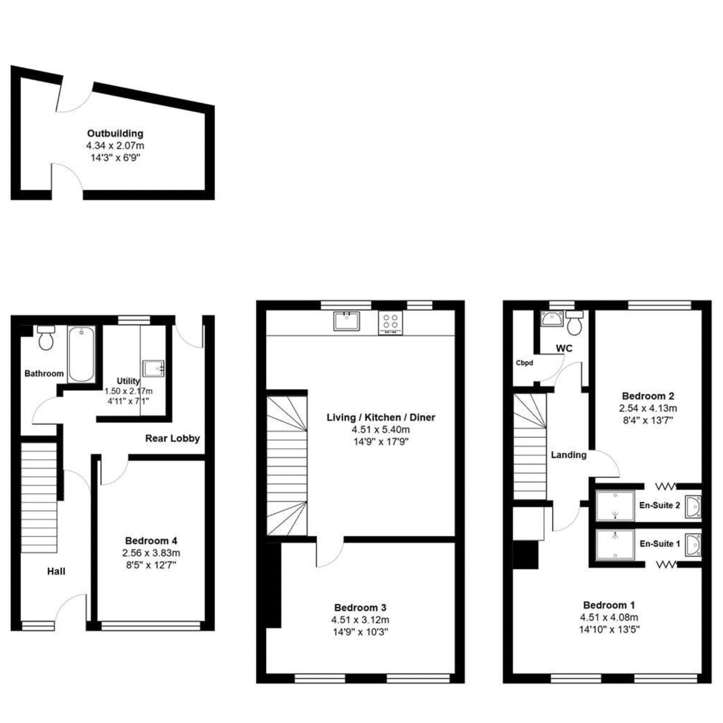
Floor Plan

Download FP

Virtual Tour

Ask a question

Key Features

  • 4 Bedroom Detached House in Bridgwater TA6, Somerset – Spacious family home in sought-after location with excellent local amenities.
  • Three-storey accommodation with flexible living space, ideal for families, home offices, or multi-generational living.
  • Freehold property, chain-free sale – move-in-ready, offering complete buyer peace of mind and strong investment potential.
  • South-facing private rear garden with patio, perfect for entertaining, relaxing, or safe family play area.
  • Modern open-plan kitchen and family dining room with integrated appliances, ideal for contemporary living.
  • Master bedroom with en-suite shower room plus three additional bedrooms for flexible family accommodation.
  • Driveway parking and integral garage providing secure, convenient off-road parking for multiple vehicles.
  • Close to well-regarded schools and popular educational catchment areas, perfect for families with children.
  • Excellent commuter links: walking distance to Bridgwater train station and easy access to M5 motorway.
  • Rare opportunity in a prime residential location – ideal family home, investment property, or buy-to-let potential.

Full Description

4 Bedroom Three Storey Detached House for Sale in Bridgwater TA6, Somerset | Freehold | South-Facing Garden | Driveway & Garage | En-Suite Master | No Chain This spacious 4-bedroom, three-storey family home is located in the highly sought-after town of Bridgwater, Somerset (TA6), offering a perfect blend of comfort, style, and convenience. Freehold and chain-free, this property is ideal for families, commuters, or those seeking a modern, move-in-ready home. The property boasts a south-facing private rear garden, perfect for outdoor entertaining, children, or quiet relaxation. Inside, the home features a modern open-plan kitchen and family dining area, ideal for contemporary living, alongside a generous lounge space on the ground floor. The master bedroom comes complete with an en-suite shower room, while three additional bedrooms provide flexible accommodation for children, guests, or a home office. Practical features include off-road driveway parking and an integral garage, offering secure and convenient parking. Families will appreciate being within walking distance of well-regarded local schools, ensuring excellent educational options. Commuters benefit from easy access to the M5 motorway and Bridgwater train station, providing direct links to Bristol, Exeter, and beyond. This property is a rare opportunity in a prime residential location, combining modern convenience, flexible living space, and investment potential. Whether you’re a growing family or an investor, this three-storey home in Bridgwater TA6 offers everything you need for comfortable, contemporary living. Key Features / SEO Bullet Points: 4-bedroom, 3-storey detached house Freehold & chain-free South-facing private rear garden Modern open-plan kitchen and family dining room Master bedroom with en-suite Driveway parking & integral garage Close to well-regarded local schools Excellent commuter links (M5 & Bridgwater station) Ideal family home or investment opportunity Located in the popular residential area of Bridgwater TA6


Parking

  • Covered Parking
  • Driveway
  • Paved Driveway
  • Off-street Parking
  • Private Parking
  • Under-croft Parking
  • Secure Parking
  • In/Out Driveway

Outside Space

  • Communal Garden
  • Front Garden
  • Rear Garden
  • Enclosed Garden
  • Patio

Heating

  • Air Conditioning
  • Double Glazing
  • Eco-Friendly
  • Electric
  • Gas
  • Gas Central Heating
  • Under Floor

Somerton Close, Bridgwater, TA6

£299,000

offers-in-region

How much can I borrow?

Find out more