FIND A PROPERTY

Courtenay House, St. Christophers Road, Haslemere, GU27

Property Reference: S4772

Listing Status

For Sale

Bedrooms

1

bathrooms

1

Property type

First Floor Flat

EPC Rating

Download EPC

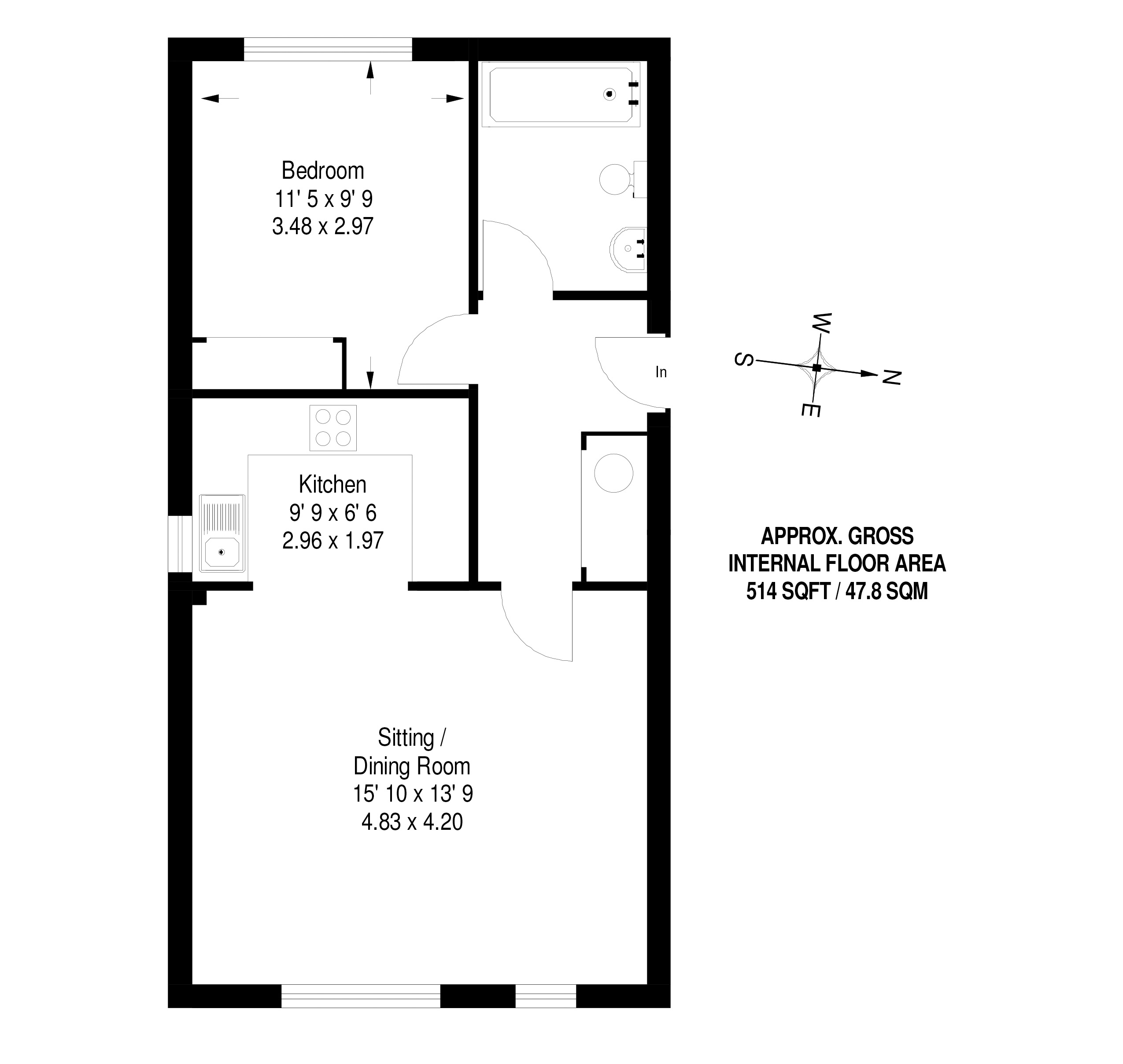
Floor Plan

Download FP

Virtual Tour

Ask a question

Key Features

Full Description

**Charming First-Floor Flat in Desirable Haslemere Location** Bright, attractive, quiet residential location, close to shops and Haslemere train station (approx. 400m). Suit a couple or single person. Large one bedroom first floor flat, well presented throughout and offers conveniently located accommodation that benefits from off-street parking with a private allocated parking space.  The property comprises of a large reception, large stylish kitchen, double bedroom with built in mirrored wardrobe and large bathroom with bath. Within short walking distance, there are a good range of shops, bars and restaurants on offer in Haslemere, with a further selection of amenities available nearby. St. Christophers Road is quiet and also located near 'The Herons' Leisure Centre. Haslemere station is 400m away with direct rail access to London Waterloo in 50 minutes. Council Tax Band: B Long Lease of 102 years. Service charge per month £162 • Very Large living room   • Double bedroom with fitted wardrobe. • Family bathroom - Includes bath. • Large Kitchen  • Allocated parking space 


Parking

  • Allocated Parking

Outside Space

  • Communal Garden

Heating

  • Electric

leasehold

Annual Service Chanrge

£162

Years Remaining

102

Courtenay House, St. Christophers Road, Haslemere, GU27

£199,950

How much can I borrow?

Find out more