FIND A PROPERTY

Sylvester Court, Mansfield, NG21

Property Reference: S4678

Listing Status

SSTC

Bedrooms

5

bathrooms

3

Property type

Detached House

EPC Rating

Download EPC

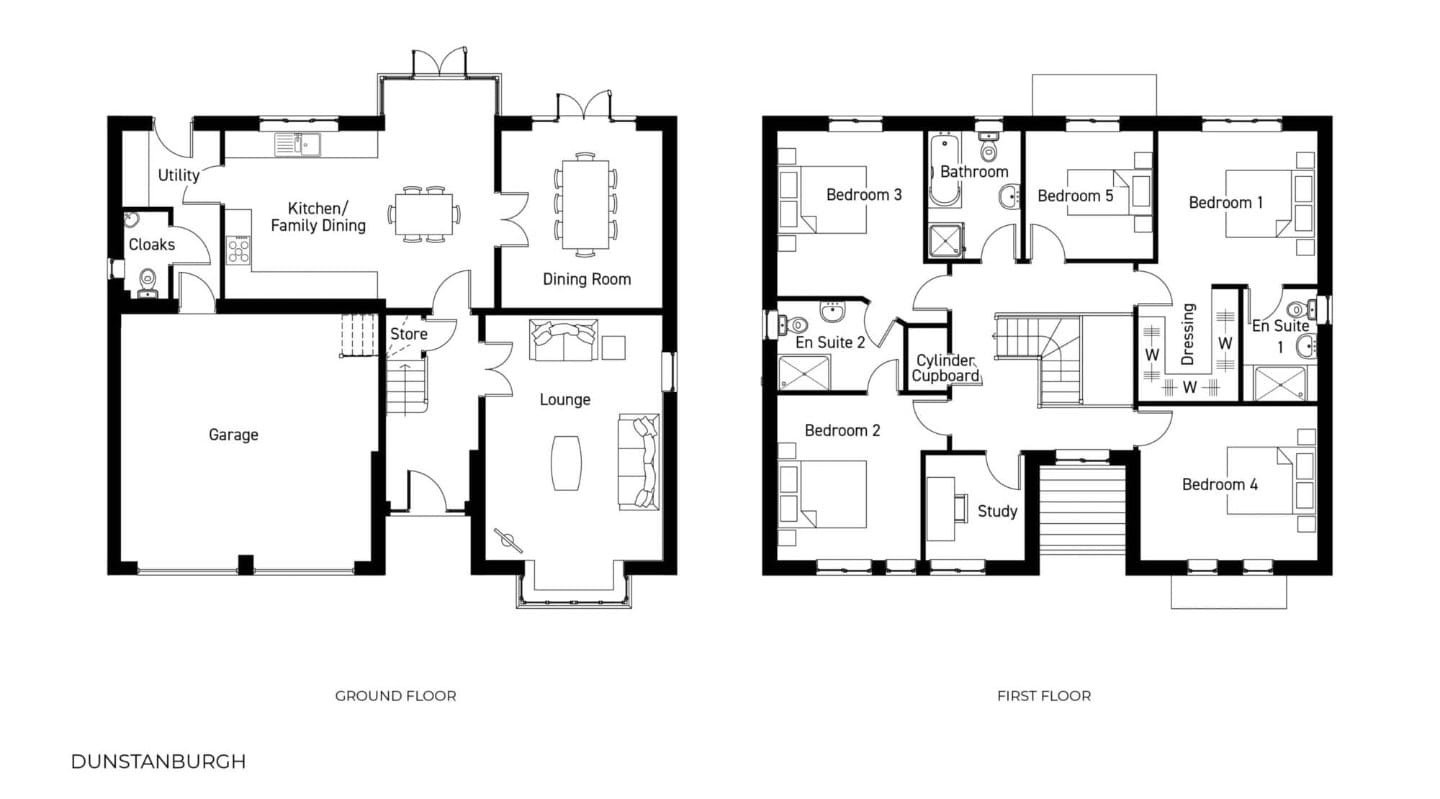
Floor Plan

Download FP

Virtual Tour

Ask a question

Key Features

  • Double Garage
  • Integrated Garage
  • Driveway
  • Paved Driveway
  • Front Garden
  • Rear Garden
  • Gas Central Heating

Full Description

**A Luxurious Family Home in a Sought-After Location** This grand, thoughtfully designed five-bedroom property is truly spacious and offers everything you could wish for in a large family home. Double doors from the hallway lead into a light and roomy lounge, a perfect space for relaxing, while at the rear of the property lays the impressive high specification kitchen, which overlooks a generous garden. This magnificent open-plan room includes space for a dining table and has beautiful French doors leading out onto the garden, ideal for the summer months. Through double doors from the kitchen is a luxurious dining room, which offers an ideal space for entertaining and also features French doors. The ground floor also benefits from a cloakroom and utility room, accessed via the kitchen. The grandeur of this home is continued upstairs, with a galleried landing sweeping around the first floor, which features five spacious bedrooms along with a separate study. The luxurious and sophisticated master bedroom benefits from a dressing area and en-suite. Bedroom two boasts its own en-suite, while the stylish family bathroom features both a bath and shower. Room Dimensions Ground Floor Lounge - 6085mm x 3957mm (19'11" x 12'11") Kitchen/Family Dining - 6014mm x 3910mm (19'8" x 12'9") Dining - 3910mm x 3600mm (12'9" x 11'9") Utility - 2188mm x 1685mm (7'2" x 5'6") First Floor Master Bedroom - 3562mm x 3382mm (11'8" x 11'1") Dressing Area - 2475mm x 2240mm (8'1" x 7'4") En suite 1 - 2475mm x 1662mm (8'1" x 5'5") Bedroom 2 - 3644mm x 3795mm (11'11" x 12'5") Bedroom 3 - 3645mm x 3263mm (11'11" x 10'8") En suite 2 - 2820mm x 1975mm (9'3" x 6'5") Bedroom 4 - 4002mm x 3407mm (13'1" x 11'2") Bedroom 5 - 2852mm x 2823mm (9'4" x 9'3") Study - 2325mm x 2221mm (7'7" x 7'3") Bathroom - 2823mm x 2075mm (9'3" x 6'9")


Sylvester Court, Mansfield, NG21

£575,000

How much can I borrow?