FIND A PROPERTY

Rutland Street, Matlock, DE4

Property Reference: S4527

Listing Status

For Sale

Bedrooms

3

bathrooms

1

Property type

Terraced House

EPC Rating

Download EPC

Floor Plan

Download FP

Virtual Tour

Ask a question

Key Features

  • Stone-built cottage period property
  • Three double bedrooms
  • Private parking space with garden area
  • Elevated sought after location
  • Feature fireplace

Full Description

Charming South-Facing Stone-Built Cottage with Stunning Views – Sought-After Matlock Location Situated in an elevated and peaceful position, this beautifully presented stone-built period cottage enjoys far-reaching south-facing views over Matlock, including iconic local landmarks such as Riber Castle, High Tor, and the Heights of Abraham. Just a short walk from the town centre, this characterful home offers a perfect blend of traditional charm and modern convenience. The property features three spacious double bedrooms, two of which include built-in storage, and a beautiful bathroom with a stylish freestanding bath. The cosy sitting room boasts a feature fireplace with log burner and opens into a small porch area, while the separate kitchen benefits from a walk-in pantry and space for dining. To the rear, a raised decking area provides an ideal spot for outdoor dining or simply relaxing in the sunshine. Additional features include gas central heating with a modern gas boiler, a private off-street parking space, a garden area, and a separate utility building with full electrics and plumbing. With excellent rail and bus links from nearby Matlock train station, good local schools, and stunning views from the upper floors, this is an ideal home for families, professionals, or those seeking a peaceful retreat with easy access to amenities. Viewing is highly recommended to fully appreciate all that this charming property has to offer.


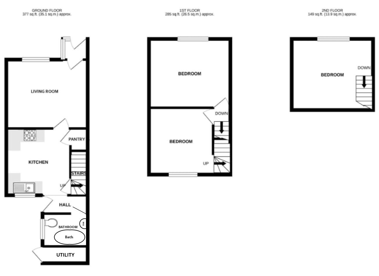
Ground Floor

Follow the driveway, heading towards the end of the terraced row of houses. A gate will lead down into the pretty courtyard where you will find the entrance to the property via a part-glazed composite door. This opens into the

Entrance Hall

A welcoming entrance hall with a useful corner cupboard. Leading onto the bathroom to the right and the kitchen to the left.

Bathroom 5.00ft x 8.00ft

This pretty bathroom features a side-facing double-glazed window with obscured glass for privacy. It’s fitted with a three-piece suite, including a rolltop bath, with overhead rainfall shower and an inset wash basin with cupboard, and WC.

Kitchen 10.20ft x 10.70ft

This inviting kitchen features a range of cupboards and drawers beneath a timber-effect worktop, plus wall-mounted units. A butler sink with mixer tap, space for an electric cooker and dishwasher, with room for a dining table. Walk in pantry with room for Fridge Freezer.

Sitting Room 13.00ft x 11.00ft

A cosy south facing sitting room with wood-effect flooring and a striking feature fireplace with rustic wooden mantel and decorative tiled surround. A rear-facing window overlooks the decking, while doors provide access to both the porch and the characterful kitchen.

Stairs

Staircase leading from the kitchen up to the first floor with hanging space for coats.

Bedroom One 12.11ft x 11.10ft

This spacious double bedroom features a front-facing window looking out to Riber castle and over the valley. This is a bright and sunny room with built in wardrobe and storage above. Open shelving to the left of the chimney breast offers more storage.

Bedroom Two 10.00ft x 10.00ft

A further pretty double bedroom overlooking the courtyard with plenty of space and a handy built in cupboard. Off this room is a staircase to the third bedroom.

Bedroom Three 11.00ft x 11.00ft

The third double bedroom in this house sits on the top floor, with fantastic south facing views over to Riber Castle and beyond. This characterful room in the eves is peaceful and welcoming, perfect for a restful night.

Parking

  • Private Parking

Outside Space

  • Rear Garden
  • Patio

Heating

  • Gas Central Heating

Rutland Street, Matlock, DE4

£210,000

offers-in-region

How much can I borrow?

Find out more