FIND A PROPERTY

School Road, Shernborne, PE31

Property Reference: S4112

Listing Status

For Sale

Bedrooms

6

bathrooms

5

Property type

Detached House

EPC Rating

Download EPC

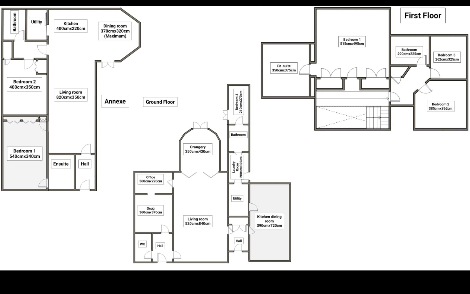
Floor Plan

Download FP

Virtual Tour

Ask a question

Key Features

  • Driveway
  • Front Garden
  • Rear Garden
  • Double Glazing
  • Wood Burner
  • Solar
  • Air Conditioning
  • Under Floor
  • Air Source Heat Pump
  • On the Royal Sandringham Estate
  • Separate cottage with conservatory, large open plan living space & 2 bedrooms both with ensuite
  • Main house with 4 generously sized bedrooms - 2 ensuite
  • Bespoke Bryan Turner kitchen with corian worktops
  • Victorian School with original School bell
  • Spacious driveway for up to 6 vehicles
  • Large summerhouse with power and water -ideal for small business/working from home
  • Quiet picturesque village overlooking village green and church
  • Cottage provides a business opportunity as a holiday let or for multi generational living

Full Description

**A Unique Opportunity to Own a Piece of History on the Royal Sandringham Estate** Set in a tranquil village on the Royal Sandringham Estate, this beautifully restored Victorian schoolhouse—with its spacious adjoining cottage—offers the perfect blend of heritage, character, and coastal living. A true lifestyle retreat, it’s just moments from the sweeping sands of North Norfolk’s beaches and a short drive to the boutiques, galleries, and eateries of Burnham Market and Wells-next-the-Sea. As you approach the main property, you'll be greeted by the updated original features such as, the stained glass windows and the original school bell, a delightful nod to its past as a village school. The school served the village and its community for 90 years, from 1876 to 1966. Since its closure, the house has only ever been owned by two families and has been lovingly renovated and modernised for a new owner to enjoy. Upon entering the main house you’re greeted by a bespoke oak staircase and a large inglenook fireplace in the spacious lounge. The room is separated by bifold doors which open into a light‑filled orangery, currently serving as a formal dining area. Throughout the interior, high‑spec finishes are abundant, from underfloor heating and air conditioning to the wood‑burner in the lounge, ensuring comfort year‑round. Beyond the lounge lies a cosy snug with its own fireplace, a convenient cloakroom/WC and an office. Off the main living area, step into the main entrance hall and into a generously proportioned bespoke kitchen and dining area. An adjoining utility room leads on to a practical boot room, a downstairs bathroom and an additional bedroom. Upstairs, the gallery landing—its wooden balustrade and exposed beams —leads to three beautifully appointed bedrooms. The master bedroom enjoys a private large en‑suite bathroom and the same characterful vaulted beams run throughout, while the two additional double bedrooms share a family bathroom. Tucked away to the side of the main house sits a fully self‑contained annex—known as School Cottage which provides versatile accommodation as a guest wing or holiday let. Here you’ll find two bright bedrooms, two modern bathrooms and an open‑plan living area that extends into a vaulted, timber‑framed conservatory. Outside, both properties share access to patios and gardens adorned with flowering borders, and a capacious gravel driveway offers parking for up to six cars. The School house has a front and rear garden, which features a small patio area, perfect for alfresco dining and entertaining. There is a functional summerhouse complete with power and water which could provide a secluded spot to relax and enjoy the surroundings alternately it could be a small studio space or a small gym. Owners Notes Please note that viewings will take place on selected days, as the cottage is currently operated as a holiday let. The School is council tax band F The Cottage is on small business rates due to being operated as a holiday let.


Snug & Office

A small lounge or snug area ideal to relax in and read a book in front of the small ornate fireplace. Also a perfect space to use as a playroom or large office space.

Cloakroom

Toilet, built in unit with hand wash basin and tiled floor.

Lounge

A large open plan lounge with brick built fireplace, Norfolk pamment tiled hearth and inset wood burning stove. Tall ornate window with stained glass features to the front.

Orangery

The lounge flows into a timber-framed orangery, featuring a sky lantern that fills the space with natural light. Currently used as a dining area, it benefits from a wall-mounted air conditioning unit, providing comfort on warm summer days and on cooler days the bi-fold glass doors can be closed.

Main Entrance Hall

Tiled floor, curved wall and built in coat and shoe cupboard.

Kitchen/ Breakfast Room

Double aspect with wooden sash windows, fitted with bespoke cabinetry made by Bryan Turner kitchens and Corian worktops. Centre island incorporates a small sink and plenty of storage. Inbuilt units include a Miele dishwasher, Rangemaster oven with 5 ring induction hob, and Bosch microwave /oven.

Utility room

Tiled floor, cupboards, Villeroy and Boch ceramic sink, cupboard for tall fridge/freezer, Miele washer.

Boot/boiler room

Water tanks and air source heat pump system. Space for tumble dryer and boot/shoe storage.

Ground floor bedroom Suite (bedroom 4)

Previously the coal shed to the school now a converted bedroom and bathroom. Panelled bath with shower over and bifold screen, toilet, basin set upon tiled shelf, Velux window. Door to double bedroom with vaulted ceiling with exposed beams, small inbuilt wardrobe, opens onto brick weaved courtyard.

First Floor Landing

Solid oak staircase with mezzanine landing looking out onto large window with stained glass features.

Bedroom 1

A spacious and striking main bedroom full of character, featuring original exposed beams and a large window that floods the room with natural light. Generously sized to accommodate a super king bed and additional bedroom furniture, the room also includes built-in double wardrobes.

En-suite bathroom

Currently an empty space requiring updating, benefiting from a vaulted ceiling and exposed beams.

Landing 2

Access to loft and a shelved airing cupboard.

Bedroom 2

A generously sized second bedroom, comfortably accommodating a king-size bed along with additional bedroom furniture. This bright and welcoming room enjoys a beautiful outlook over the village green.

Bedroom 3

A well-proportioned third bedroom, ideal for a single bed or a small double, making it perfect as a guest room or child’s nursery. This room enjoys a pleasant view over the rear garden.

Main Bathroom

Panelled bath, shower over with shower curtain, basin with cupboard below, curved wall with shelving, toilet, limestone tiled walls and heated towel rail. In need of modernisation/ updating.

School Cottage - Lounge

This cottage features a spacious open-plan lounge, kitchen, and dining area, perfect for modern living. The lounge is enhanced by a cozy log burner and large windows that flood the space with natural light and offer views of the private garden.

School Cottage- Kitchen/dining area

The kitchen is thoughtfully designed with classic shaker-style units, durable Corian worktops, and a large central island with breakfast seating. Integrated appliances include a fridge/freezer and double ovens. A compact utility area provides additional practicality, housing a washer and dishwasher.

School Cottage -Bedroom 1

A light and airy principal bedroom is a beautifully proportioned room featuring large built-in wardrobes and a dedicated dressing table area, providing both practicality and elegance. Wooden shutters frame the windows, allowing for privacy while still welcoming plenty of natural light.

School Cottage - Bedroom 2

A large second bedroom with an ample built in wardrobe space. Easy access to the adjacent family bathroom.

School Cottage -En-Suite

Walk in rainfall shower with frameless glass enclosure. Contemporary vanity unit with stone effect countertop, heated towel rail.

School Cottage - Conservatory

This impressive dining room is set within a large, timber-framed conservatory, bathed in natural light and offering picturesque views of the pretty cottage garden, the room seamlessly connects indoor and outdoor living with double doors that open directly onto the patio

School Cottage - Main bathroom

This stylish bathroom features elegant stone-effect flooring. A bath with an overhead shower offers versatile bathing options, while a contemporary sink is paired with an illuminated mirror.

School Road, Shernborne, PE31

£998,000 - £998,000

guide-price

How much can I borrow?

Find out more