FIND A PROPERTY

Langley Walk, Birmingham, B15

Property Reference: S3357

Listing Status

For Sale

Bedrooms

2

bathrooms

1

Property type

Flat/Apartment

EPC Rating

Download EPC

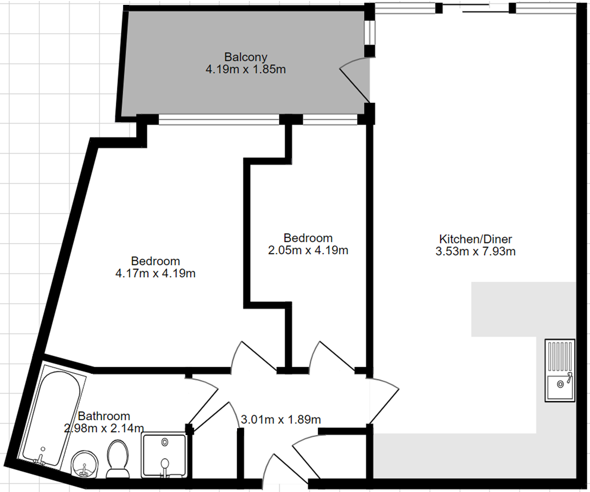
Floor Plan

Download FP

Virtual Tour

Ask a question

Key Features

  • Allocated Parking
  • Balcony
  • Gas Central Heating
  • Beautiful Views
  • Close to City Centre

Full Description

We are excited to market this modern two-bedroom apartment with a park-facing balcony and views over the south of Birmingham. This apartment is located on the fourth floor in the ever-popular Park Central development in the city centre. The property comprises an entrance hallway with ample storage leading into an open plan kitchen and living room with both Juliet style balcony and access to a balcony overlooking the park. This room features a well-equipped kitchen with integrated appliances and a breakfast bar. Also from the hallway are two spacious bedrooms benefiting from floor to ceiling windows. There is a family-sized bathroom complete with bath, separate shower and WC. The property benefits from a secure allocated parking space and lift access is provided to all floors. Located in the Park Central area of Birmingham, just a short walk away from the heart of Birmingham City Centre and around the corner from the luxury Mailbox shopping centre, home to plenty of popular bars and restaurants. New Street and Five Ways stations are both nearby, offering fantastic transport links across the city and the UK. Tenure: leasehold Length of lease: 129 years remaining Ground rent: £250 per annum Service charge: £1,575 half yearly Council tax band: B EPC rating: B


Langley Walk, Birmingham, B15

£200,000

How much can I borrow?

Find out more