FIND A PROPERTY

Watermans Quay, William Morris Way, Fulham, SW6

Property Reference: S3351

Listing Status

For Sale

Bedrooms

2

bathrooms

2

Property type

Flat/Apartment

EPC Rating

Download EPC

Floor Plan

Download FP

Virtual Tour

Virtual Tour

Key Features

  • River Thames views from main living areas
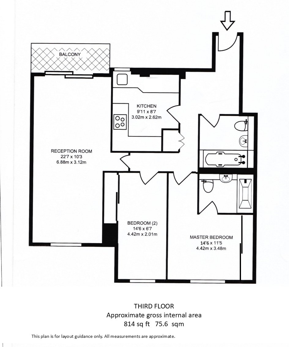
  • 814 sq ft - 75.6 sq m
  • EPC C rating: excellent condition
  • Share of freehold
  • Recently refurbished
  • 2 bedrooms 2 bathrooms
  • Wood floors
  • Balcony with Thames views
  • Directly on the Thames towpath, with no road between the building and the river
  • A short walk beside the river to Imperial Wharf Overground and Chelsea Harbour

Full Description

Spacious 814 sq ft riverside apartment with direct Thames views, parking & concierge. A two-bedroom, two-bathroom riverside apartment with direct Thames views from the principal living areas, set on the third floor of a well-established purpose-built development with lift, 24-hour concierge and allocated underground parking. The flat is well laid out, presented in good condition with wood floors and recently updated kitchen and bathrooms, and is offered with a share of the freehold. The property has been successfully rented for many years and offers an attractive balance of lifestyle appeal and long-term value in a prime Fulham riverside location near Chelsea Harbour. Key Features: • Spacious & Bright Reception Room: A generous 22’7 x 10’3 living space with dual-aspect windows, wood flooring, and sliding doors opening to a south-facing balcony overlooking private gardens and the River Thames. • Modern Kitchen: Fully equipped with granite worktops, integrated fridge/freezer, washer/dryer, dishwasher, oven and hob, plus Thames view. The kitchen and living room could easily be converted to open plan. • Master Bedroom: A spacious 14’6 x 11’5 with fitted wardrobes and ensuite shower room. • Second Bedroom: 14’6 x 6’7 double bedroom with fitted wardrobes. • Contemporary Family Bathroom: Panelled bath with shower, hand basin, and WC. • South-Facing Balcony: Serene views over lush communal gardens and the River Thames. Prime Location & Lifestyle: Nestled on a quiet backroad, this flat offers direct access to the Thames Path, perfect for scenic riverside walks. The prestigious Harbour Club leisure complex, with its swimming pools and tennis courts, is next door, while a large Sainsbury’s, riverside restaurants, and the vibrant amenities of Chelsea Harbour and Imperial Wharf are a few minutes’ stroll away. Imperial Wharf Overground station is minutes away, ensuring excellent connectivity. Additional Benefits: • Secure underground parking space • 24-hour concierge service • Well-maintained communal gardens with private access to the Thames towpath • Share of freehold plus 962-year lease • Recent EIC electrical certificate • Chain-free private sale, no agents involved Property Details: • Entrance Hall: 10’7 x 8’1, with video entry system, wood flooring, and recessed halogen lighting. • Reception Room: 22’7 x 10’3, with river views, sliding balcony doors, wood flooring, and recessed halogen lighting. • Master Bedroom: 14’6 x 11’5, with fitted wardrobes and ensuite (7’9 x 5’5). • Second Bedroom: 14’6 x 6’7, with fitted wardrobes. • Family Bathroom: 7’7 x 7’2, with modern fittings and tiled flooring. • Kitchen: 9’11 x 8’7, with Thames views and high-end appliances. • Council Tax: Band G, Hammersmith & Fulham. • Tenure: Share of freehold plus 962-year lease. This well-maintained flat, set within a managed block with an active residents’ association, is surrounded by beautifully landscaped communal gardens and offers direct access to Wandsworth Bridge and miles of riverside walks. Ideal as a luxurious home or a high-yield investment, this chain-free property is ready to move in or let out. Contact the owner directly through Emoov for viewings or further details.


Parking

  • Underground Parking
  • Private Parking
  • Allocated Parking

Outside Space

  • Balcony

Heating

Watermans Quay, William Morris Way, Fulham, SW6

£595,000

How much can I borrow?

Find out more