FIND A PROPERTY

Caledonian Road, London, N1

Property Reference: S4715

Listing Status

For Sale

Bedrooms

3

bathrooms

1

Property type

Flat/Apartment

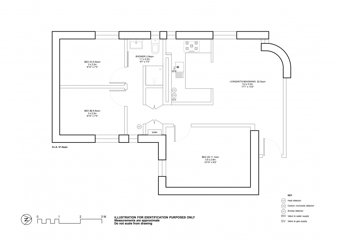
Floor Plan

Ask a question

Virtual Tour

Ask a question

Key Features

  • Superb position for access to Kings Cross/St Pancras International
  • Share of Freehold
  • Open plan kitchen/diner/living room
  • Shower room with basin and shower cubicle
  • 3 Bedrooms
  • Wood flooring throughout
  • Live/work planning permission
  • EPC Rating C

Full Description

This light, spacious 3 bedroom flat with access to a shared private terrace overlooking the Regent's Canal is located just 6 mins from Kings Cross/St Pancras & Euston underground, mainline & international stations. The flat is situated within a private development with on site caretaker & entry phone, situated on the Regents Canal and easy access to the tow path which runs to Granary Square, Paddington and Islington . The property is located in the heart of the popular area of King's Cross and is within easy reach of shops, bars and restaurants The property is set just off Caledonian Road, by the Regents Canal and only minutes to the urban development of Regent Quarter bringing a dynamic mix of living, working and leisure space. The Crick Institute, The British Library, Central St Martins, UCL & SOAS are all within walking distance. King's Cross and St Pancras is one of London's busiest links between the National Rail network, with six Underground lines with a direct link to mainland Europe. Blue chip employers such as Google are a short walk from the flat. Property ownership information Tenure: Leasehold with share of freehold Council tax band: E Annual ground rent: No ground rent Ground rent review period: No review period Annual service charge: £4100 Service charge review period: Annually Years left on lease: 962 years Note: All property information is provided as a guide only. You should always check with your solicitor prior to the exchange of contracts.


Parking

Outside Space

  • Communal Garden

Heating

  • Gas Central Heating

leasehold

Ground Rent

£0

Annual Service Chanrge

£4100

Years Remaining

962

Caledonian Road, London, N1

£600,000

How much can I borrow?

Find out more