FIND A PROPERTY

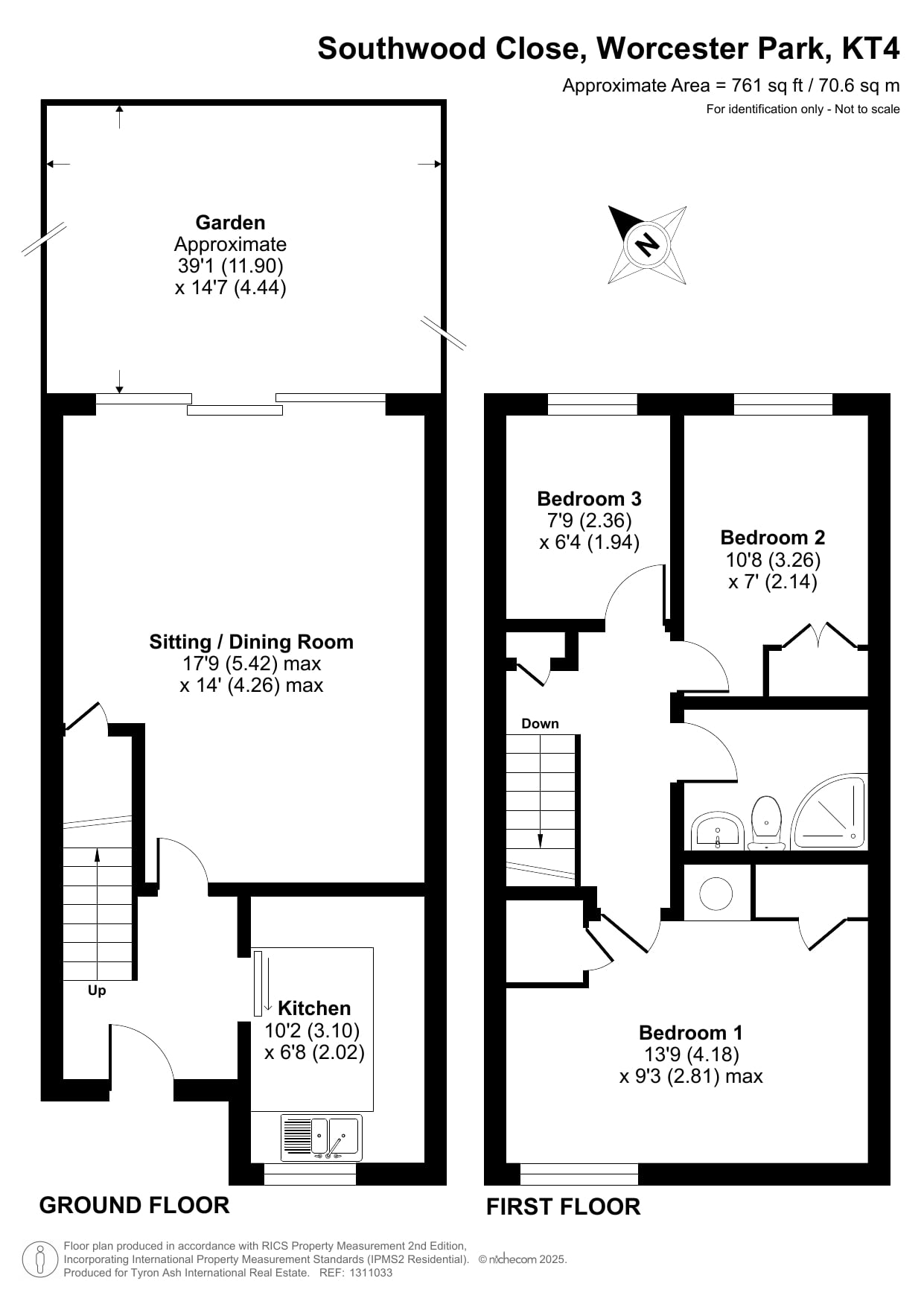
Southwood Close, Worcester Park, KT4

Property Reference: S4700

Listing Status

SSTC

Bedrooms

3

bathrooms

1

Property type

Terraced House

EPC Rating

Download EPC

Floor Plan

Download FP

Virtual Tour

Ask a question

Key Features

  • Quiet private location
  • Perfect family starter home
  • Cul-de-sac community position

Full Description

Nestled in a quiet cul-de-sac in the ever popular Worcester Park, this well presented three bedroom terraced home offers a fantastic opportunity for families, first time buyers or those looking to downsize locally. Enjoying a peaceful setting with a strong sense of community, the property provides a practical layout, good sized rooms, and the added benefit of a garage en bloc. The ground floor features a bright and spacious lounge/dining room, perfect for relaxing or entertaining, with direct access to the private rear garden, ideal for children, pets, or outdoor dining. The kitchen overlooks the front garden, offering a pleasant outlook and is well laid out with ample storage and worktop space. Upstairs, the home offers three bedrooms, including two good sized doubles and a generous single, along with a modern family bathroom. The property is well maintained throughout, with scope to personalise or modernise to suit your taste. To the rear, the garden provides a lovely outdoor space, while the garage en bloc offers secure parking or additional storage, an increasingly valuable asset. Located in Worcester Park, the home benefits from easy access to a wide range of local amenities, including shops, cafes, and supermarkets along Central Road. There are several popular primary and secondary schools in the area, making it an ideal spot for families. For commuters, Worcester Park Station offers direct trains to London Waterloo in around 30 minutes, Morden tube station for the Northern Line into central London, and the A3 is easily accessible for those travelling by car. Nearby green spaces, including Nonsuch Park and Morden Hall Park, offer excellent leisure and walking opportunities. This is a fantastic opportunity to acquire a well located home in a peaceful and friendly neighbourhood, with everything Worcester Park has to offer right on your doorstep. Register your interest for the upcoming viewings day.


Parking

  • Garage
  • Communal Parking

Outside Space

  • Rear Garden
  • Front Garden
  • Communal Garden

Heating

  • Gas

Southwood Close, Worcester Park, KT4

£425,000

offers-over

How much can I borrow?