FIND A PROPERTY

Wish Road, Hove, BN3

Property Reference: S4101

Listing Status

SSTC

Bedrooms

4

bathrooms

2

Property type

Semi-detached House

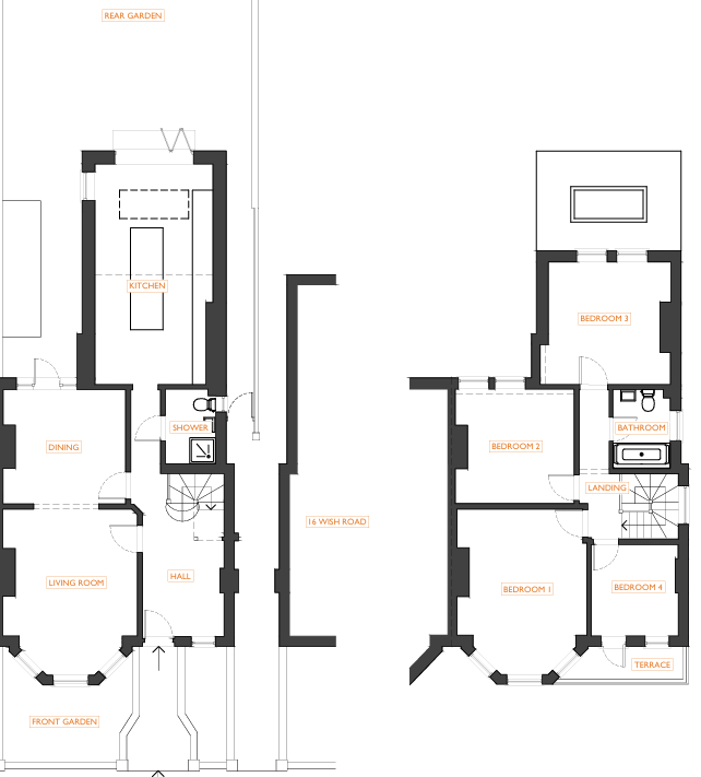
Floor Plan

Download FP

Virtual Tour

Ask a question

Key Features

  • One of the finest locations in Brighton & Hove
  • First time on the open market in over 80 years
  • Extended and modernised 22ft kitchen
  • Balcony sea views
  • Moments from superb sporting and leisure facilities
  • Within catchment area of highly regarded schools
  • Fully renovated throughout
  • Planning approval for large loft extension to provide extra bedroom (en suite).
  • Residents' parking: Zone W

Full Description

Location, location, location! An extremely rare opportunity to purchase a handsome Edwardian semi-detached villa in one of the best locations in Brighton & Hove. The house, which has remained in the same family for over 80 years, features a classic two-tone brick façade, large modern kitchen extension, high ceilings, original sash windows and a feature balcony with sea views; it has recently been fully restored and extended to provide a blend of timeless elegance and modern living. Approaching the property over a classic monochrome tiled path, you are greeted by a spacious, light entrance hall with high ceilings, engineered oak wood flooring, and an original stained glass window. This sets the tone for the sense of space and character felt throughout the house. Your eye is drawn through the property to the extended kitchen complete with fully opening bifold doors framing a delightful Mediterranean garden. The kitchen features a large central island with seating, an extremely long run of solid oak worktop, a full range of state-of-the-art appliances, matt black cabinetry, and a stunning cherry red Bertazzonni range cooker and matching stainless steel extractor. There is plenty of storage space and a temperature controlled wine cooler. The heart of the home is undoubtedly the spacious connected reception rooms: 27ft in length, featuring high ceilings and a wood burning stove that offers a warm and inviting space to relax in. Upstairs, the four bedrooms offer ample accommodation for a large family – with the prospect of adding a further double bedroom with en suite bathroom. There is planning permission and architect's drawings to convert the large loft with a simple dormer extension with no loss of floor space on the 1st floor. The smallest bedroom features a balcony with sea views – where the current residents enjoy a morning coffee in the summer! The fully enclosed rear garden has been designed in a low maintenance Mediterranean style, with many established plants and a bespoke double bike shed by Brighton Bike Sheds. The west facing garden provides a peaceful oasis and sun trap to bask or enjoy alfresco dining. Lovingly restored and maintained by its current owners, this home is a true gem, combining Edwardian charm with modern comforts, in one of the most desirable locations in Brighton & Hove. Moments from the iconic Hove seafront, Wish Park, Rockwater restaurant, the lagoon (wakeboarding, windsurfing), and the recently opened Hove Beach Park (skate park, pump track, beach volleyball, padel & tennis courts, etc.) The property also sits within the catchment area of the most highly regarded local schools. Don't miss the chance to make it yours!


Parking

Outside Space

Heating

Wish Road, Hove, BN3

£1,250,000

How much can I borrow?