FIND A PROPERTY

Strafford Court, Pondcroft Road, Knebworth, SG3

Property Reference: S3327

Listing Status

For Sale

Bedrooms

2

bathrooms

1

Property type

First Floor Flat

EPC Rating

Download EPC

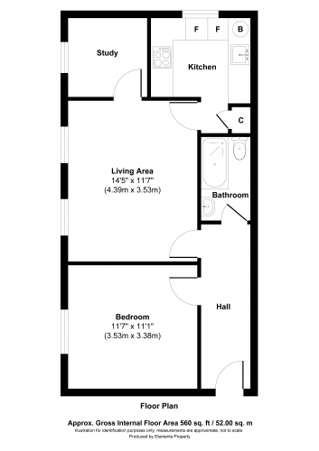
Floor Plan

Download FP

Virtual Tour

Ask a question

Key Features

  • Communal Parking
  • Garage
  • Communal Garden
  • Double Glazing
  • Gas Central Heating
  • Development of only 20 units
  • Shared freehold
  • 999-year lease from 2010

Full Description

The flat is in a development of 20 units in the centre of Knebworth village and is on the first floor with its own front door, accessed via external stairs. There is also access to a communal garden. The flat has a double bedroom, and a large living area with a separate room off it suitable as a study or small bedroom, together with a kitchen and bathroom. It has gas central heating and full double-glazing, its own front door, is accessed via external stairs, and includes an en-bloc garage. The flat is on the first floor and is reached using communal (external) stairs. The exterior door of the flat leads to an entrance hall which the living area, double bedroom and bathroom are accessed. Both the living area and double bedroom are generously sized, with a further, small room off the main living area which is suitable for use as a study or small bedroom. The living area leads through to the kitchen which is fitted with storage cupboards and includes a gas hob, electric oven, fridge, freezer and washer-dryer. The gas boiler is also situated in the kitchen. The bathroom is fitted with a bath with a shower, hand basin and WC. This flat has an en-bloc garage and also benefits from a permit-controlled car park while on-street residents' parking is also available. The flat is close to the centre of Knebworth, just a few minutes from a range of local shops, GP surgery, primary school and Knebworth railway station, with fast trains to London and Cambridge. The property is Council Tax B and is leasehold with a 999-year lease commencing from 1st January 2010. There is no ground rent. Each flat owner is a member of the company, limited by guarantee, which owns the freehold of and is responsible for the management of the whole development, with each flat-owner paying a service charge to cover the costs of providing the services and maintenance.


Living Room 3.50m x 4.40m

Two windows to front, Doors to bedroom 2/Study and kitchen.

Bedroom 1 3.50m x 3.40m

Window to front

Bedroom 2/Study 2.15m x 2.15m

Window to front

Kitchen 3.00m x 2.73m

Fitted kitchen with built-in storage space, gas hob, electric oven, and with freezer, fridge, washer-dryer. The dimensions are 3.0m x 2.73m max.

Bathroom 1.70m x 2.40m

Bath with shower, hand basin, WC

Strafford Court, Pondcroft Road, Knebworth, SG3

£260,000

How much can I borrow?

Find out more